Dane techniczne
- Powierzchnia użytkowa 143.79 m²
- Powierzchnia zabudowy 84.42 m²
- Kubatura 533.00 m³
- Kąt nachylenia dachu 7.00°
- Wysokość budynku 6.85 m
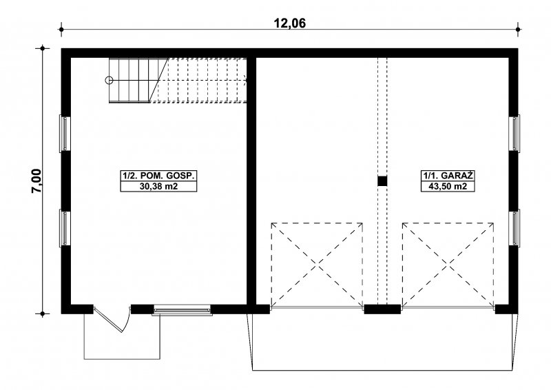
- Min. wymiary działki 12.06x7.00 m
- Garaż 43.50 m²
- Pracownia Kup projekt
Technologia budowy
Budynek wykonany w technologii tradycyjnej. Ściany murowane z bloczków z betonu komórkowego grubości 24cm i 12cm. Bramy o wymiarach 2,50x2,20m. Strop gęstożebrowy „TERIVA 4,0”. Więźba dachowa jednospadowa, stalowa, pokryta płytą warstwową.
Opis
PROJEKT:
Projekt garażu dwustanowiskowego, piętrowego, przeznaczonego dla samochodów osobowych z dwoma pomieszczeniami gospodarczymi. Do projektu dołączone jest zestawienie: stali, więźby dachowej oraz stolarki drzwiowej i okiennej, jak również bezpłatna zgoda na dokonywanie zmian .
Dbamy o swoich Klientów, jak nikt inny!
Do każdego projektu zakupionego za pośrednictwem serwisu kreoDOM.pl otrzymasz książeczkę z rabatami na zakupy w firmach Komfort, Fachowiec, Domino Łazienki, Komandor, Witek Home i innych. Książeczka na pewno okaże się przydatna podczas urządzania Twojego wymarzonego domu!
Książeczka z rabatami do takich firm jak: Komfort, Domino Łazienki, Fachowiec, Vox, Komandor, Witek Home i innych
Gwarancja
bezpiecznych zakupów
Dodatkowe pakiety projektowe