Dane techniczne
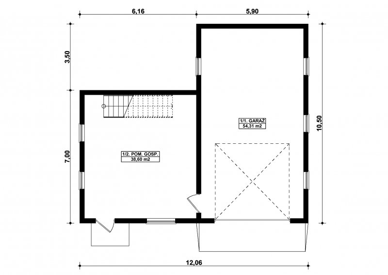
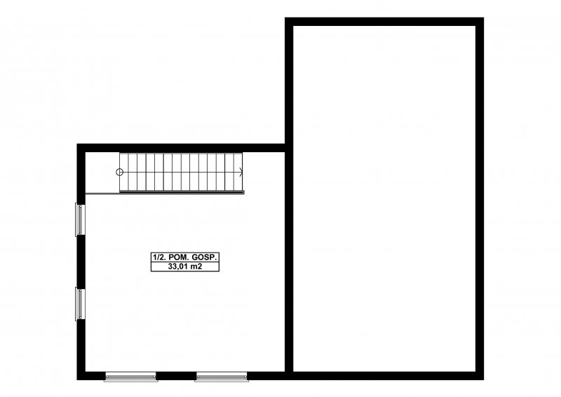
- Powierzchnia użytkowa 125.92 m²
- Powierzchnia zabudowy 105.07 m²
- Kubatura 655.20 m³
- Kąt nachylenia dachu 7.00°
- Wysokość budynku 6.85 m
- Min. wymiary działki 12.06x7.00 m
- Garaż 51.31 m²
- Pracownia Kup projekt
Technologia budowy
Budynek wykonany w technologii tradycyjnej. Ściany murowane z bloczków z betonu komórkowego grubości 24cm. Brama o wymiarach 4,00x4,00 m. Strop gęstożebrowy „TERIVA 4,0”. Więźba dachowa jednospadowa, stalowa, pokryta płytą warstwową.
Opis
PROJEKT:
Projekt garażu jednostanowiskowego, piętrowego, przeznaczonego dla samochodów ciężarowych z dwoma pomieszczeniami gospodarczymi. Do projektu dołączone jest zestawienie: stali, więźby dachowej oraz stolarki drzwiowej i okiennej, jak również bezpłatna zgoda na dokonanie zmian.
Dbamy o swoich Klientów, jak nikt inny!
Do każdego projektu zakupionego za pośrednictwem serwisu kreoDOM.pl otrzymasz książeczkę z rabatami na zakupy w firmach Komfort, Fachowiec, Domino Łazienki, Komandor, Witek Home i innych. Książeczka na pewno okaże się przydatna podczas urządzania Twojego wymarzonego domu!
Książeczka z rabatami do takich firm jak: Komfort, Domino Łazienki, Fachowiec, Vox, Komandor, Witek Home i innych
Gwarancja
bezpiecznych zakupów
Dodatkowe pakiety projektowe