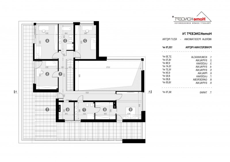
Dane techniczne
- Powierzchnia użytkowa 314.42 m²
- Powierzchnia zabudowy 303.81 m²
- Powierzchnia dachu 202.00 m²
- Min. wymiary działki 28.05x27.35 m
- Garaż 41.35 m²
- Pracownia HomeKONCEPT
Technologia budowy
| Technologia |
Opis |
| Fundamenty |
Tradycyjne - na ławach fundamentowych |
| Ściany |
Dwuwarstwowe - pustak ceramiczny 25 cm + styropian 20 cm |
| Strop |
Żelbetowy wylewany |
| Schody |
Żelbetowe wylewane jednobiegowe |
| Dach |
Stropodach pełny kryty membraną EPDM |
| Elewacja |
Tynk silikonowy połączony z deską elewacyjną - modrzew syberyjski, Rhombus 20x95 z firmy Komplex Market |
| Ogrzewanie |
Gazowe - piec kondensacyjny. Ogrzewanie podłogowe w salonie, jadalni, kuchni, łazienkach, komunikacji, pomieszczeniu rekreacyjnym, garderobach i wiatrołapie oraz tradycyjne grzejniki w pozostałych pomieszczeniach |
| Wentylacja |
Mechaniczna z rekuperacją |
Opis
Nowoczesny dom piętrowy, jednorodzinny, wolnostojący.
Dbamy o swoich Klientów, jak nikt inny!
Do każdego projektu zakupionego za pośrednictwem serwisu kreoDOM.pl otrzymasz książeczkę z rabatami na zakupy w firmach Komfort, Fachowiec, Domino Łazienki, Komandor, Witek Home i innych. Książeczka na pewno okaże się przydatna podczas urządzania Twojego wymarzonego domu!
Książeczka z rabatami do takich firm jak: Komfort, Domino Łazienki, Fachowiec, Vox, Komandor, Witek Home i innych
Gwarancja
bezpiecznych zakupów
Dodatkowe pakiety projektowe
- Szczegółowy kosztorys inwestorski 350,00 zł.
- Wentylacja mechaniczna z rekuperacją 450,00 zł
- Pompa ciepła z ogrzewaniem podłogowym 800,00 zł
- Ogrzewanie podłogowe 400,00 zł
- Kominek z płaszczem wodnym 300,00 zł
- Szambo 250,00 zł
- Dodatkowy egzemplarz projektu 350,00 zł
- Kotłownia na paliwo stałe 350,00 zł
- Wentylacja grawitacyjna 350,00 zł