Technologia tradycyjna :
- ściany zewnętrzne murowane grubości 30 cm
- ściany wewnętrzne działowe gr. 12 cm
- wszystkie ściany wykonane z pustaków ceramicznych "POROTHERM"
- sufit podwieszany z płyt GK na ruszcie stalowym
- konstrukcja więźby dachowej drewniana w układzie krokwiowowym z dolnym belkami
- pokrycie dachówka ceramiczna
- kominek
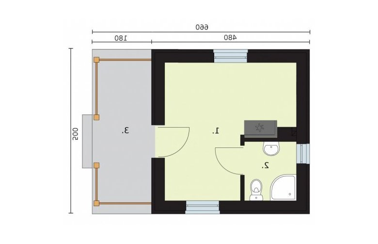
Projekt budynku gospodarczego AMADORA.
Projekt składa się z części architektonicznej, konstrukcyjnej, wewnętrznych instalacji wod.-kan i elektrycznych. W projekcie załączone są podstawowe zestawienie stali, drewna i stolarki okienno-drzwiowej. Do projektu dołączamy bezpłatną zgodę na wprowadzenie zmian, oświadczenie projektantów o wykonaniu projektu zgodnie z obowiązującymi normami i przepisami oraz kserokopie uprawnień projektantów wraz z aktualnym wpisem do izby. W przypadku zamówienia projektu w technologii lekkiej, drewnianej konstrukcji szkieletowej, powierzchnia użytkowa budynku jest o około 7% większa.