Technologia tradycyjna , ściany murowane grubości 25 cm. Konstrukcja więźby dachowej drewniana, pokrycie dachówka ceramiczna. Projekt garażu składa się z czterech egzemplarzy a w tym części architektonicznej, konstrukcyjnej i instalacji wewnętrznej elektrycznej. W projekcie załączone są podstawowe zestawienie stali, drewna i stolarki okienno-drzwiowej. Do projektu dołączamy bezpłatną zgodę na wprowadzenie zmian, oświadczenie projektantów o wykonaniu projektu zgodnie z obowiązującymi normami i przepisami oraz kserokopie uprawnień projektantów wraz z aktualnym wpisem do izby.
Stal: 311.74 m2
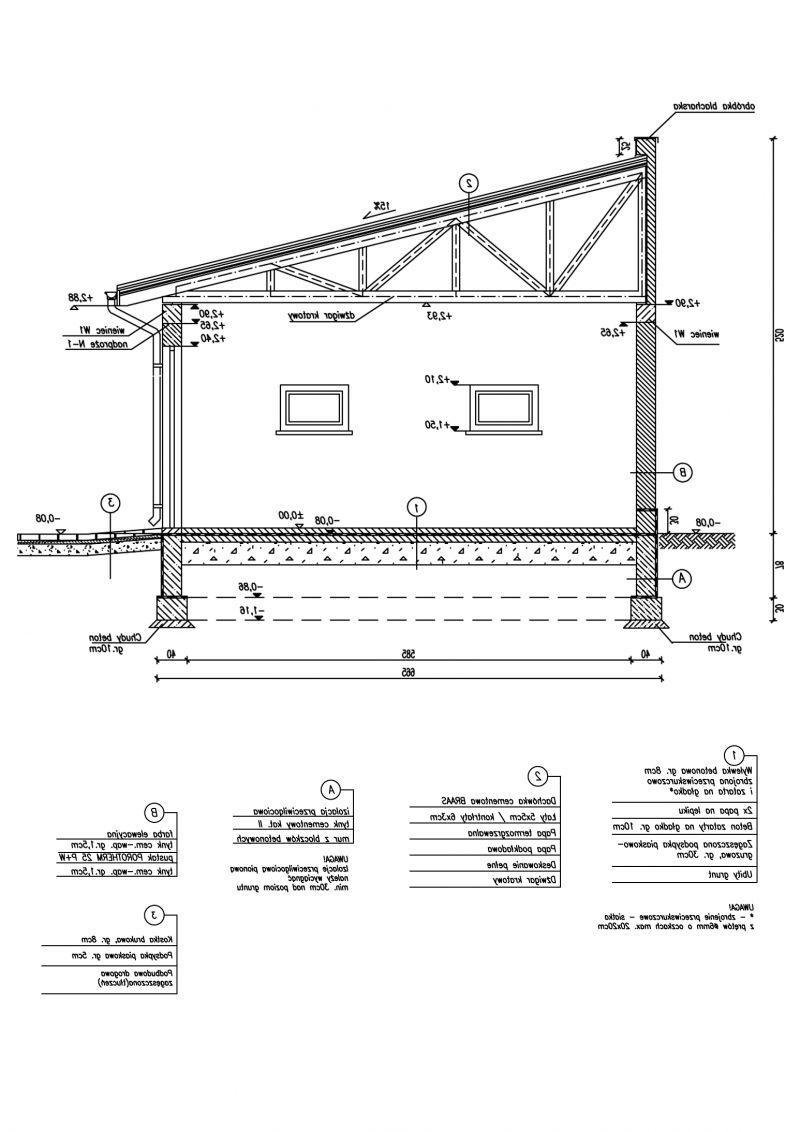
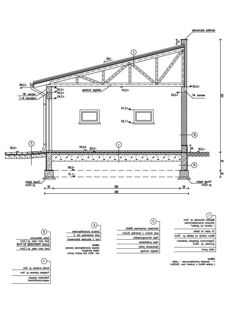
Budynek gospodarczy, wolnostojący. Projekt składa się z części architektonicznej, konstrukcyjnej i wewnętrznej instalacji elektrycznej. W projekcie załączone są podstawowe zestawienie stali, drewna i stolarki okienno-drzwiowej. Do projektu dołączamy bezpłatną zgodę na wprowadzenie zmian, oświadczenie projektantów o wykonaniu projektu zgodnie z obowiązującymi normami i przepisami oraz kserokopie uprawnień projektantów wraz z aktualnym wpisem do izby. W przypadku zamówienia projektu w technologii lekkiej, drewnianej konstrukcji szkieletowej, powierzchnia użytkowa budynku jest o około 7% większa.