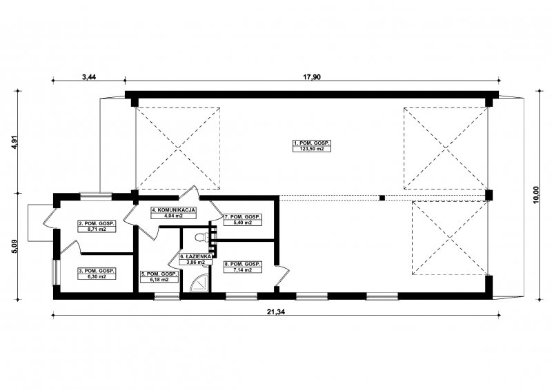
Dane techniczne
- Powierzchnia użytkowa 165.13 m²
- Powierzchnia zabudowy 192.25 m²
- Kubatura 868.70 m³
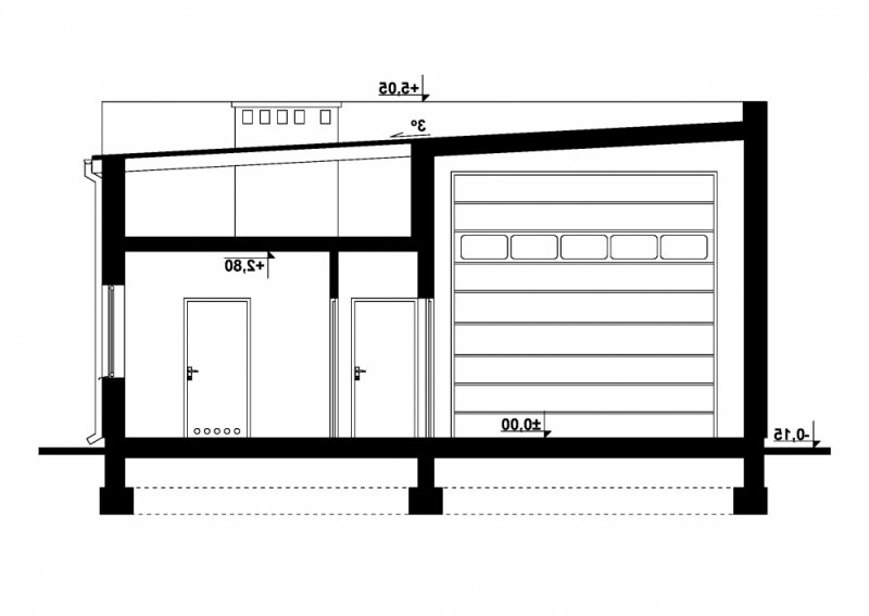
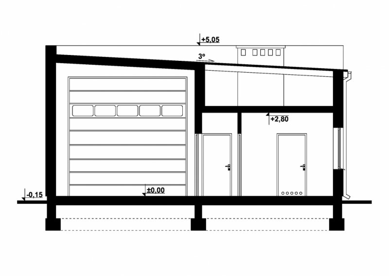
- Kąt nachylenia dachu 3.00°
- Wysokość budynku 5.05 m
- Min. wymiary działki 21.34x10.00 m
- Pracownia Kup projekt
Technologia budowy
Budynek wykonany w technologii tradycyjnej. Ściany warstwowe grubości 34cm, murowane z bloczków z betonu komórkowego grubości 24cm, ocieplone styropianem grubości 10cm. Ściany wewnętrzne z betonu komórkowego grubości 24cm i 12cm. Bramy o wymiarach 4,00x4,00m i 3,60x3,60m. Słupy i podciągi żelbetowe. Więźba dachowa jednospadowa, drewniana, pokryta blachą trapezową.
Opis
PROJEKT:
Projekt budynku parterowego, niepodpiwniczonego z sześcioma pomieszczeniami gospodarczymi komunikacją i łazienką. Do projektu dołączone jest zestawienie: stali, więźby dachowej oraz stolarki drzwiowej i okiennej, jak również bezpłatna zgoda na dokonanie zmian.
Dbamy o swoich Klientów, jak nikt inny!
Do każdego projektu zakupionego za pośrednictwem serwisu kreoDOM.pl otrzymasz książeczkę z rabatami na zakupy w firmach Komfort, Fachowiec, Domino Łazienki, Komandor, Witek Home i innych. Książeczka na pewno okaże się przydatna podczas urządzania Twojego wymarzonego domu!
Książeczka z rabatami do takich firm jak: Komfort, Domino Łazienki, Fachowiec, Vox, Komandor, Witek Home i innych
Gwarancja
bezpiecznych zakupów
Dodatkowe pakiety projektowe