Technologia tradycyjna :
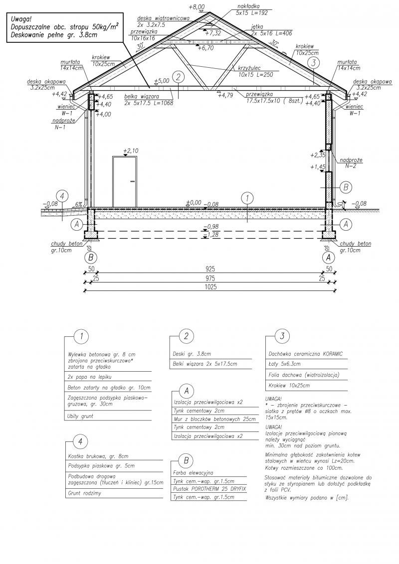
- ściany zewnętrzne nośne murowane grubości 25cm
- wszystkie ściany wykonane z pustaków ceramicznych "POROTHERM"
- wysokość budynku 8,08m
- dach dwuspadowy 30°
- więźba dachowa drewniana
- pokrycie dachu dachówka ceramiczna
- wymiar bram garażowych 4,0x4,0m
Stal: 993.85 m2
Budynek gospodarczy, wolnostojący. Projekt składa się z części architektonicznej, konstrukcyjnej i wewnętrznej instalacji elektrycznej. W projekcie załączone są podstawowe zestawienie stali, drewna i stolarki okienno-drzwiowej. Do projektu dołączamy bezpłatną zgodę na wprowadzenie zmian, oświadczenie projektantów o wykonaniu projektu zgodnie z obowiązującymi normami i przepisami oraz kserokopie uprawnień projektantów wraz z aktualnym wpisem do izby. W przypadku zamówienia projektu w technologii lekkiej, drewnianej konstrukcji szkieletowej, powierzchnia użytkowa budynku jest o około 7% większa.