Dane techniczne
- Powierzchnia użytkowa 70.40 m²
- Powierzchnia zabudowy 81.90 m²
- Kubatura 378.00 m³
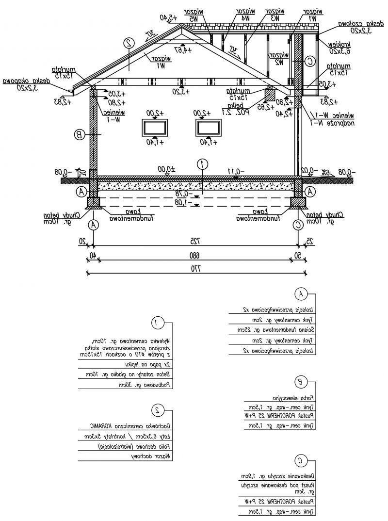
- Kąt nachylenia dachu 30.00°
- Powierzchnia dachu 122.70 m²
- Wysokość budynku 5.48 m
- Min. wymiary działki 19.60x14.50 m
- Garaż 41.62 m²
- Pracownia Pro Arte
Technologia budowy
- wszystkie ściany wykonane pustaków ceramicznych "POROTHERM"
- więźba dachowa drewniana
- pokrycie dachu dachówka ceramiczna
- wymiar bramy garażowej 5,0x2,4m
Stal: 898.99 m2
Opis
Budynek gospodarczy, wolnostojący. Projekt składa się z części architektonicznej, konstrukcyjnej i wewnętrznej instalacji elektrycznej. W projekcie załączone są podstawowe zestawienie stali, drewna i stolarki okienno-drzwiowej. Do projektu dołączamy bezpłatną zgodę na wprowadzenie zmian, oświadczenie projektantów o wykonaniu projektu zgodnie z obowiązującymi normami i przepisami oraz kserokopie uprawnień projektantów wraz z aktualnym wpisem do izby. W przypadku zamówienia projektu w technologii lekkiej, drewnianej konstrukcji szkieletowej, powierzchnia użytkowa budynku jest o około 7% większa.
Rzuty
PRZYZIEMIE
- Garaż 41.62 m2
- Pom. rekreacyjne 28.78 m2
Rzuty
PRZYZIEMIE
- Garaż 41.62 m2
- Pom. rekreacyjne 28.78 m2
Dbamy o swoich Klientów, jak nikt inny!
Do każdego projektu zakupionego za pośrednictwem serwisu kreoDOM.pl otrzymasz książeczkę z rabatami na zakupy w firmach Komfort, Fachowiec, Domino Łazienki, Komandor, Witek Home i innych. Książeczka na pewno okaże się przydatna podczas urządzania Twojego wymarzonego domu!
Książeczka z rabatami do takich firm jak: Komfort, Domino Łazienki, Fachowiec, Vox, Komandor, Witek Home i innych
Gwarancja
bezpiecznych zakupów
Dodatkowe pakiety projektowe
- Kosztorys inwestorski Zapytaj o dostępność