Technologia tradycyjna :
- ściany zewnętrzne murowane grubości 25 cm.
- wszystkie ściany wykonane z pustaków ceramicznych "POROTHERM".
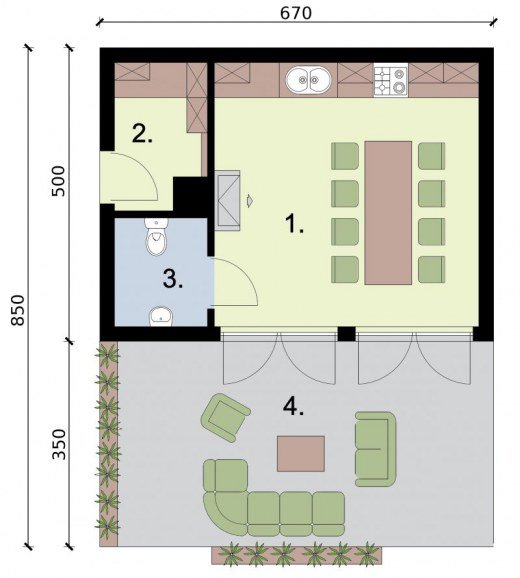
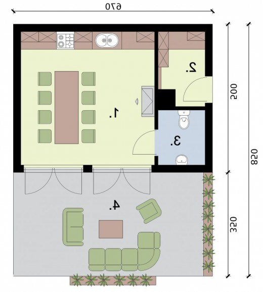
KL3 kuchnia letnia z pom. gospodarczym, WC i tarasem
W przypadku ubiegania się o pozwolenie na budowę projekt nosi nazwą budynku gospodarczego. W części opisowej projektu znajduje się pomieszczenie gospodarcze z funkcjami aneksu kuchennego.
Kompleksowy projekt kuchni letniej wyposażony w toaletę, pomieszczenie gospodarcze, biesiadzisko oraz rozległy taras.
Projekt składa się z części architektonicznej, konstrukcyjnej, wewnętrznej instalacji elektrycznej i sanitarnej. W projekcie załączone są podstawowe zestawienie stali, drewna i stolarki okienno-drzwiowej. Do projektu dołączamy bezpłatną zgodę na wprowadzenie zmian, oświadczenie projektantów o wykonaniu projektu zgodnie z obowiązującymi normami i przepisami oraz kserokopie uprawnień projektantów wraz z aktualnym wpisem do izby. W przypadku zamówienia projektu w technologii lekkiej, drewnianej konstrukcji szkieletowej, powierzchnia użytkowa budynku jest o około 7% większa.