Dane techniczne
- Powierzchnia użytkowa 73.06 m²
- Powierzchnia zabudowy 103.18 m²
- Kubatura 590.00 m³
- Kąt nachylenia dachu 45.00°
- Powierzchnia dachu 212.00 m²
- Wysokość budynku 7.24 m
- Min. wymiary działki 22.84x15.37 m
- Pracownia LK & Projekt
Technologia budowy
- Elewacje: wykończone tynkiem akrylowym, cokoły oraz fragmenty elewacji obłożone kamieniem
- Konstrukcja dachu: drewniana docieplona wełną mineralną gr. 15 cm
- Pokrycie dachu: dachówką ceramiczną
- Strop: żelbetowy
- Ściany wewnętrzne: z cegły kratówki gr.25 cm
- Ściany fundamentowe: betonowe
- Ściany zewnętrzne: z cegły kratówi gr.25 cm, styropianu gr.10 cm oraz cegły kratówki o gr.12 cm
- Ławy fundamentowe: żelbetowe
- Okna i drzwi balkonowe: drewniane
- Wentylacja: grawitacyjna
- Koszt orientacyjny (bez Vat): 160 732.00 zł.
Opis
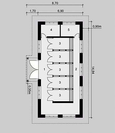
Budynek stajni, parterowy, wolnostojący, niepodpiwniczony. We wnętrzu zaprojektowano 5 pojedynczych stanowisk dla koni, pomieszczenie na uprząż oraz pomieszczenie pomocnicze.
Rzuty
PARTER
Parter
1. Korytarz 2 29.93m
2. Korytarz paszowy 10.05m
3. Boks dla konia 4.5m
4. Pomieszczenie pomocnicze 5.29m
5. Pomieszczenie na uprząż 5.29m
Rzuty
PARTER
Parter
1. Korytarz 2 29.93m
2. Korytarz paszowy 10.05m
3. Boks dla konia 4.5m
4. Pomieszczenie pomocnicze 5.29m
5. Pomieszczenie na uprząż 5.29m
Dbamy o swoich Klientów, jak nikt inny!
Do każdego projektu zakupionego za pośrednictwem serwisu kreoDOM.pl otrzymasz książeczkę z rabatami na zakupy w firmach Komfort, Fachowiec, Domino Łazienki, Komandor, Witek Home i innych. Książeczka na pewno okaże się przydatna podczas urządzania Twojego wymarzonego domu!
Książeczka z rabatami do takich firm jak: Komfort, Domino Łazienki, Fachowiec, Vox, Komandor, Witek Home i innych
Gwarancja
bezpiecznych zakupów
Dodatkowe pakiety projektowe
- Kosztorys inwestorski cena ustalana indywidualnie
- Kolektory słoneczne cena ustalana indywidualnie
- Kominek z DGP cena ustalana indywidualnie
- Wentylacja mechaniczna z rekuperacją cena ustalana indywidualnie
- Pompa ciepła cena ustalana indywidualnie