Technologia tradycyjna , ściany murowane grubości 25 cm. Konstrukcja więźby dachowej drewniana, pokrycie dachówka ceramiczna.
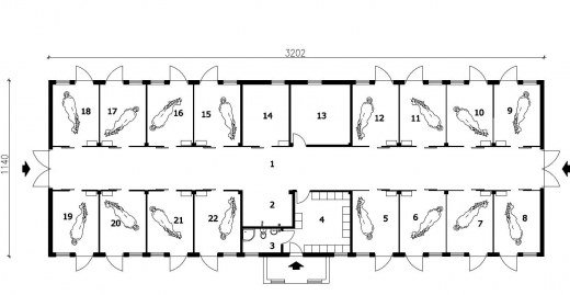
Stajnia dla koni - S22- 16 boksów
Niezwykły, odwołujący się swą architekturą do tradycji staropolskich, projekt obszernej stajni. Został stworzony dla szesnastu koni, dodatkowy, siedemnasty boks, stanowi izolatkę. Do środka prowadzą trzy wejścia, dwa wieńczące komunikację od wschodu i zachodu, trzecie w centralnej części budynku prowadzi przez siodlarnię do łazienki lub obszernej komunikacji.
Same boksy rozmieszczono przy północnej i południowej ścianie budynku. Przy siodlarni urządzono myjnię dla koni. Naprzeciwko niej znajduje się obszerna paszalnia oraz wspomniana izolatka dla koni, która jako jedyny boks posiada wejście tylko przez komunikację wewnątrz budynku. Pozostałe boksy mają dwa wejścia, jedno właśnie z komunikacji, drugie bezpośrednio z boksu. Same pomieszczenia dla koni są obszerne, każdy ma powierzchnię 12m2. Teraz już wiesz, że chcesz zbudować stajnię według tego projektu. Spełnia ona wszystkie kryteria, które powinna spełniać stajnia dla Twoich koni.
Projekt stajni dla koni. Projekt stajni składa się z czterech egzemplarzy a w tym części architektonicznej, konstrukcyjnej i instalacji wewnętrznej elektrycznej. W projekcie załączone są podstawowe zestawienie stali, drewna i stolarki okienno-drzwiowej. Do projektu dołączamy bezpłatną zgodę na wprowadzenie zmian, oświadczenie projektantów o wykonaniu projektu zgodnie z obowiązującymi normami i przepisami oraz kserokopie uprawnień projektantów wraz z aktualnym wpisem do izby.
Szerokość komunikacji : 2,8m Wymiary boksów: 3m x 3,5m W łazience zastosowano przepływowy podgrzewacz wody umywalkowo-natryskowy.