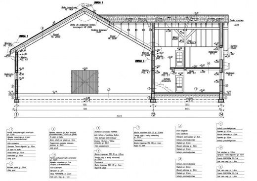
Technologia tradycyjna:
- w części stajennej i ujeżdżalni ściany murowane grubości 25cm.
- w części mieszkalnej ściany murowane grubości 30cm + 10cm styropian.
- konstrukcja więźby dachowej drewniana w układzie płatwiowo-kleszczowym
- pokrycie dachówka ceramiczna
- w części mieszkalnej strop gęstożebrowy o gr. 23cm
- nad boksami zaprojektowano strop z belek drewnianych o przekroju 10x20cm
Stajnia na 13 boksów, z częścią mieszkalną, ujeżdżalnią . Ten blisko 1200 metrowy budynek stajni imponuje rozmachem z jakim został zaprojektowany. Duża ujeżdżalnia, czyli pomieszczenie przeznaczone do nauki jazdy konnej przez cztery pory roku. Można ją pokryć sypkim piaskiem. Ujeżdżalnia może służyć jako miejsce pokazów, konkursów i zawodów sportowych. Część mieszkalna oraz 13 boksów + 1 dla klaczy ze źrebięciem tworzy przemyślaną całość, zapewniającą zwierzętom, właścicielom i obsłudze odpowiednie warunki do pracy i opieki. Komunikacja na przestrzał wraz z częścią skierowaną na południowy-wschód umożliwia szybkie i bezpieczne prowadzenie hodowli. Zarówno sprzątanie boksów, jak i karmienie nie sprawiają większych trudności. Boksy o wymiarach niespełna 12 m2 są komfortowe, wyposażone w otwory okienne, zapewniające odpowiednią wentylację. Część mieszkalna usytuowana jest od południowo-zachodniej strony. Wiatrołap, kuchnia z aneksem-jadalnym i salon tworzą jedno pomieszczenie i to w nim usytuowane są schody wiodące na piętro. Dalej znajdziemy przedsionek, po lewej łazienkę zaś na wprost siodlarnię, z której można przejść do części stajennej i paszarni. Na piętrze części mieszkalnej znajdą Państwo dwie łazienki, trzy sypialnie oraz dwa pokoje.
Projekt stajni składa się z czterech egzemplarzy a w tym części architektonicznej, konstrukcyjnej , instalacji wewnętrznej elektrycznej i wod.-kan, c. o. W projekcie załączone są podstawowe zestawienie stali, drewna i stolarki okienno-drzwiowej. Do projektu dołączamy bezpłatną zgodę na wprowadzenie zmian, oświadczenie projektantów o wykonaniu projektu zgodnie z obowiązującymi normami i przepisami oraz kserokopie uprawnień projektantów wraz z aktualnym wpisem do izby