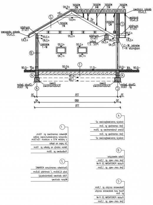
Technologia tradycyjna :
- ściany zewnętrzne nośne murowane grubości 25cm
- ściany wewnętrzne nośne grubości 25cm
- wszystkie ściany wykonane z pustaków ceramicznych "POROTHERM"
- więźba dachowa drewniana o konstrukcji krokwiowo-jętkowej
- pokrycie dachówka ceramiczna
- wymiar bramy garażowej 5000x2400
Projekt garażu z pomieszczeniem rekreacyjnym.
Wymiar bramy garażowej 5000x2400
Projekt składa się z części architektonicznej, konstrukcyjnej i wewnętrznej instalacji elektrycznej. W projekcie załączone są podstawowe zestawienie stali, drewna i stolarki okienno-drzwiowej. Do projektu dołączamy bezpłatną zgodę na wprowadzenie zmian, oświadczenie projektantów o wykonaniu projektu zgodnie z obowiązującymi normami i przepisami oraz kserokopie uprawnień projektantów wraz z aktualnym wpisem do izby. W przypadku zamówienia projektu w technologii lekkiej, drewnianej konstrukcji szkieletowej, powierzchnia użytkowa budynku jest o około 7% większa.