Ściany zewnętrzne 2-warstwowe: Beton komórkowy ( 24cm) / Pustak ceramiczny (25cm) + styropian 20cm Uściany < 0,20 W/(m2*K) – warunek spełniony.
Ławy fundamentowe tradycyjne: Ściany fundamentowe betonowe gr.24(25cm) z bloczków betonowych lub wylewane.
Stropy: płyta żelbetowa. Zamiennie można zastosować strop gęstożeberkowy typu TERIVA .
Konstrukcja dachu: tradycyjna drewniana, pokrycie dachu z dachówki ceramicznej.
Elewacje: pokryte tynkiem strukturalnym cienkowarstwowym.
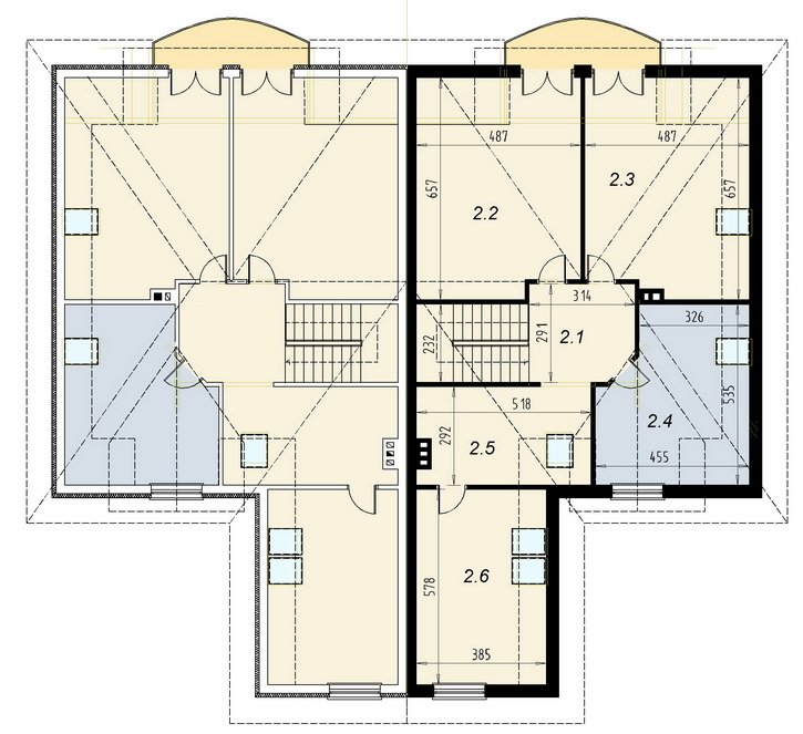
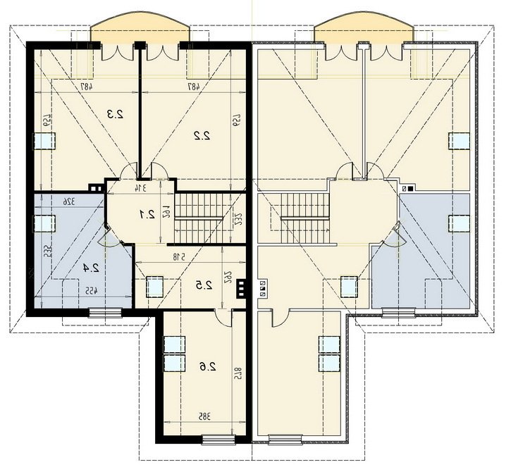
Projekt został wykonany na indywidualne zamówienie firmy deweloperskiej. Na bazie tego projektu została wybudowana duża część osiedla mieszkaniowego pod Warszawą. Dom spełnia wymagania 5-6 osobowej rodziny. Pomieszczenia wewnątrz są duże i funkcjonalne. Na poddaszu znajdują się duże sypialnie oraz pokój kąpielowy. Dom posiada wbudowany garaż na jeden samochód osobowy. Dach domu posiada zróznicowane nachylenie, od frontu 35 st, od strony elewacji bocznej 44st. Doskonały projekt na wąskie działki podmiejskie, szczególnie gdy możliwe jest wykonanie zabudowy bliźniaczej.
Energooszczędność:
Wersja standardowa:
Projekt spełnia wymagania cieplne dla nowo projektowanych domów określone w WT2008 (Rozporządzenie Ministra Infrastruktury dotyczące warunków technicznych, jakim powinny odpowiadać budynki i ich usytuowanie). Charakterystyka energetyczna w granicach 120 [kWh/m2/rok].
Wersja energooszczędna:
Projekt dostępny w wersji energooszczędnej .Czas realizacji zamówienia 10dni.
Charakterystyka energetyczna w granicach 75 [kWh/m2/rok].
Projekt w tej wersji posiada instalację wentylacji z odzyskiem ciepła oraz zmodyfikowane grubości izolacji fundamentów, podłóg, ścian, stropów i dachu.