Ściany zewnętrzne 2-warstwowe: Beton komórkowy ( 24cm) / Pustak ceramiczny (25cm) + styropian 20cm Uściany < 0,20 W/(m2*K) – warunek spełniony.
Ławy fundamentowe tradycyjne: Ściany fundamentowe betonowe gr.24(25cm) z bloczków betonowych lub wylewane.
Stropy: płyta żelbetowa. Zamiennie można zastosować strop gęstożeberkowy typu TERIVA .
Konstrukcja dachu: tradycyjna drewniana, pokrycie dachu z dachówki ceramicznej.
Elewacje: pokryte tynkiem strukturalnym cienkowarstwowym.
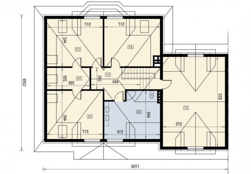
Projekt został wykonany na indywidualne zamówienie firmy deweloperskiej. Na bazie tego projektu została wybudowana duża część osiedla mieszkaniowego pod Warszawą. Dom spełnia wymagania 5-6 osobowej rodziny. Pomieszczenia wewnątrz są duże i funkcjonalne. Na poddaszu znajdują się duże sypialnie oraz pokój kąpielowy. Dom posiada wbudowany garaż na dwa samochody osobowe.
Energooszczędność:
Wersja standardowa:
Projekt spełnia wymagania cieplne dla nowo projektowanych domów określone w WT2008 (Rozporządzenie Ministra Infrastruktury dotyczące warunków technicznych, jakim powinny odpowiadać budynki i ich usytuowanie). Charakterystyka energetyczna w granicach 120 [kWh/m2/rok].
Wersja energooszczędna:
Projekt dostępny w wersji energooszczędnej .Czas realizacji zamówienia 10dni.
Charakterystyka energetyczna w granicach 75 [kWh/m2/rok]
Projekt w tej wersji posiada instalację wentylacji z odzyskiem ciepła oraz zmodyfikowane grubości izolacji fundamentów, podłóg, ścian, stropów i dachu.
1.1 Wiatrołap 4.5
1.2 Hall 18.5
1.3 Kuchnia i jadalnia 24.7
1.4 Pokój dzienny 31.8
1.5 Pokój 12.5
1.6 Wc 2.2
1.7 Garaż 35.4
1.8 Kotłownia 11.5