Fundamenty Tradycyjne - na ławach fundamentowych
Ściany Dwuwarstwowe - pustak ceramiczny 25 cm + styropian 20 cm
Stropy Żelbetowe wylewane
Dach Tradycyjna więźba dachowa pokryta dachówką ceramiczną lub cementową
Elewacja Kamień elewacyjny połączony z tynkiem
Ogrzewanie Gazowe - piec kondensacyjny
Wentylacja Mechaniczna z rekuperacją
| Stan surowy otwarty | 151 127 zł |
| Stan surowy zamknięty | 181 306 zł |
| Stan deweloperski | 336 366 zł |
| Stan deweloperski metodą gospodarczą | 235 456 zł |
HomeKONCEPT 47 B to projekt domu przeznaczony do zabudowy bliźniaczej, wyróżniający się ciekawymi rozwiązaniami architektonicznymi. W strefie wejściowej zwraca uwagę charakterystyczne belkowanie, które zostało zaprojektowane w dwóch wariantach kolorystycznych, oddzielnie dla każdego segmentu. Nowoczesne wykończenie elewacji z okładzin kamiennych, naturalnego drewna oraz tynku w stonowanych barwach, podkreśla wyjątkową stylistykę budynku. Duże przeszklenia części dziennej bardzo dobrze doświetlają wnętrza, łącząc jednocześnie dom z otaczającym go ogrodem. Ozdobne belkowanie zastosowane nad tarasem to atrakcyjny detal architektoniczny wyróżniający całą kolekcję HomeKONCEPT.
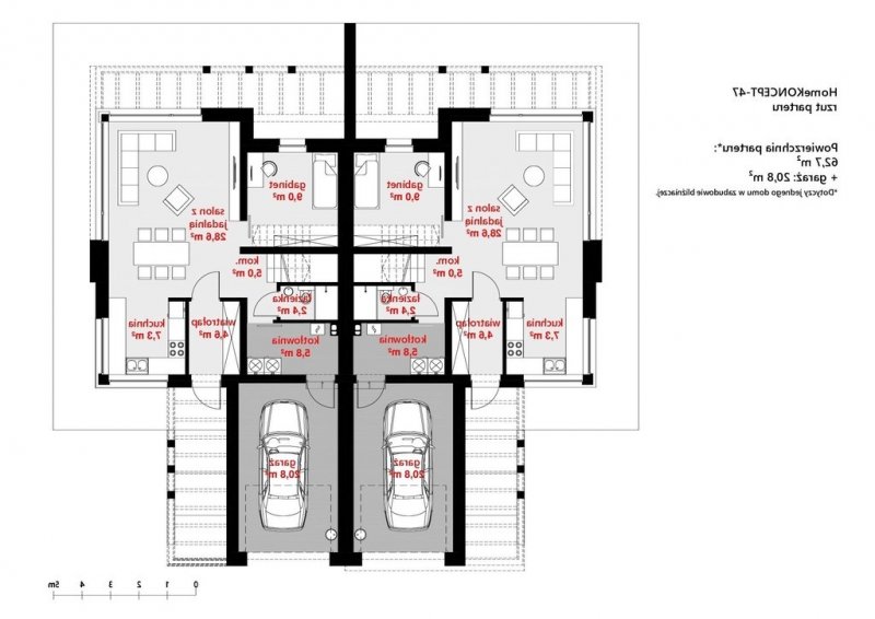
W reprezentacyjnej strefie dziennej obszerny salon mieści komfortową, narożną kanapę, zapewniając domownikom relaks i wypoczynek każdego dnia. Przy dużym stole w jadalni cała rodzina może zasiąść wygodnie do niedzielnego obiadu lub uroczystej kolacji. Otwarta kuchnia została pięknie doświetlona dwoma oknami. Dodatkowy pokój doskonale sprawdzi się jako gabinet lub sypialnia gościnna. Z holu dostępna jest niewielka łazienka z prysznicem oraz kotłownia z funkcją pralni, przez którą można przejść do garażu jednostanowiskowego.
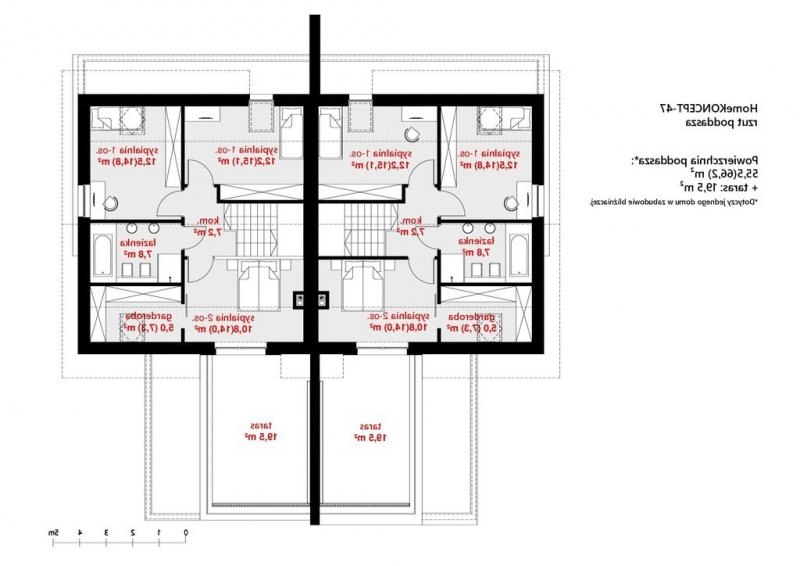
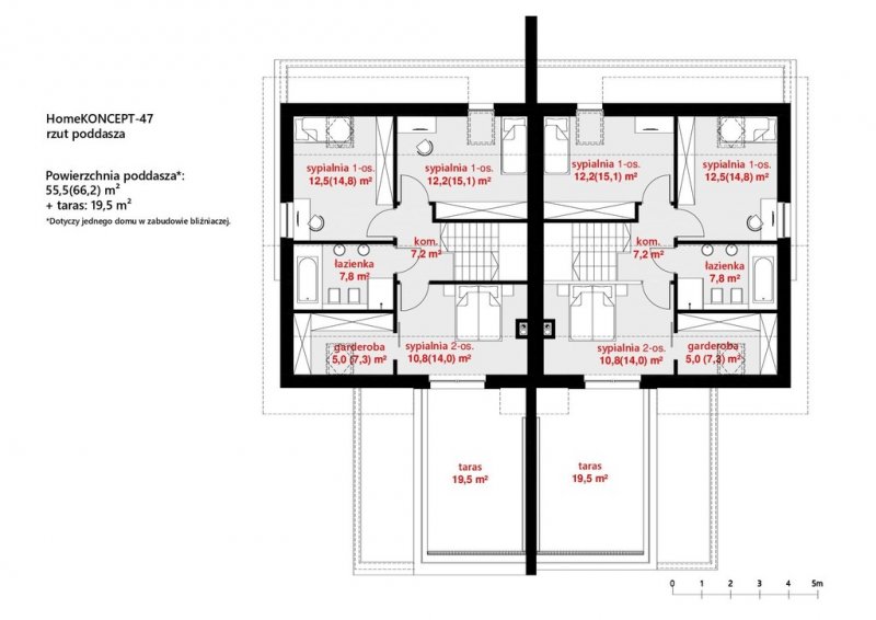
Na poddaszu mieści się strefa prywatna domu. Zostały tutaj zaprojektowane trzy ustawne sypialnie oraz ogólnodostępna łazienka z prysznicem i wanną. W sypialni rodziców mieści się również obszerna garderoba i można z niego przejść na słoneczny taras, znajdujący się nad garażem.
Projekt HomeKONCEPT 47 B to propozycja domu do zabudowy bliźniaczej, która jest przeznaczona zarówno dla Klientów indywidualnych, jak również deweloperów realizujących osiedla mieszkaniowe.