Dane techniczne
- Powierzchnia użytkowa 114.91 m²
- Powierzchnia zabudowy 135.02 m²
- Kubatura 513.22 m³
- Kąt nachylenia dachu 45.00°
- Powierzchnia dachu 170.50 m²
- Wysokość budynku 8.46 m
- Min. wymiary działki 19.10x19.40 m
- Garaż 35.29 m²
- Pracownia Archipelag
Technologia budowy
Dom zaprojektowany w technologii murowej ze stropem gęstożebrowym. Schody wewnętrzne drewniane. Dach o konstrukcji drewnianej kryty blachodachówką. Elewację wykonano z tynku strukturalnego. Schody wewnętrzne drewniane. Stolarka okienna drewniana lub PCV. Rolety zewnętrzne naokienne w systemie CleverBox firmy BeClever.
Opis
Dom parterowy z użytkowym poddaszem, w zabudowie bliźniaczej, niepodpiwniczony, z garażem dwustanowiskowym, przeznaczony dla 4-5-osobowej rodziny. Parter to strefa dzienna, na którą składa się obszerny salon z kominkiem, jadalnia w efektownym wykuszu, wygodna kuchnia, łazienka oraz pomieszczenie gospodarcze. Zaplanowany układ funkcjonalny przewiduje możliwość przejścia z garażu przez pomieszczenie gospodarcze do części mieszkalnej. Strefa nocna znajduje się na poddaszu, w jej skład wchodzą trzy sypialnie, w tym jedna z osobną łazienką oraz dodatkowa, przestronna łazienka. Nad poddaszem znajduje się strych, dostępny przez wyłaz w stropie. Karolinka to doskonała propozycja dla rodziny, która ceni funkcjonalne przestrzenie i stylowe wykończenie elewacji. Karolinkę wyróżniają komfortowe wnętrza i niezwykle funkcjonalny układ domu. Istnieje możliwość podpiwniczenia budynku.
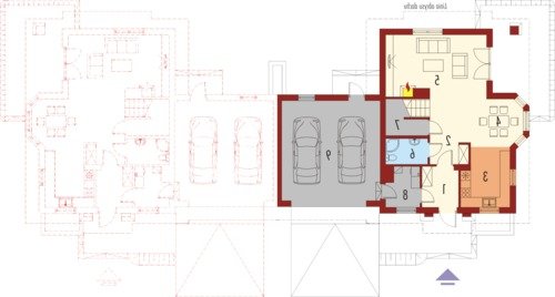
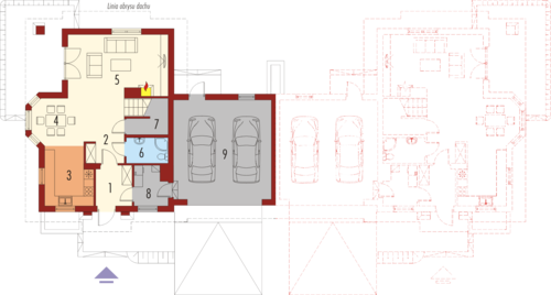
Rzuty
PARTER
- Wiatrołap 5.24 m2
- Hol z klatką schodową 10.90 m2
- Kuchnia 9.95 m2
- Spiżarnia 1.22 m2
- Jadalnia 11.27 m2
- Pokój dzienny 22.30 m2
- Łazienka 3.82 m2
- Kotłownia 4.48 m2
- Garaż 35.29 m2
PODDASZE
- Korytarz 2.65 m2
- Sypialnia 12.49 m2
- Łazienka 6.23 m2
- Sypialnia 12.57 m2
- Sypialnia 9.14 m2
- Łazienka 7.10 m2
Rzuty
PARTER
- Wiatrołap 5.24 m2
- Hol z klatką schodową 10.90 m2
- Kuchnia 9.95 m2
- Spiżarnia 1.22 m2
- Jadalnia 11.27 m2
- Pokój dzienny 22.30 m2
- Łazienka 3.82 m2
- Kotłownia 4.48 m2
- Garaż 35.29 m2
PODDASZE
- Korytarz 2.65 m2
- Sypialnia 12.49 m2
- Łazienka 6.23 m2
- Sypialnia 12.57 m2
- Sypialnia 9.14 m2
- Łazienka 7.10 m2
Dbamy o swoich Klientów, jak nikt inny!
Do każdego projektu zakupionego za pośrednictwem serwisu kreoDOM.pl otrzymasz książeczkę z rabatami na zakupy w firmach Komfort, Fachowiec, Domino Łazienki, Komandor, Witek Home i innych. Książeczka na pewno okaże się przydatna podczas urządzania Twojego wymarzonego domu!
Książeczka z rabatami do takich firm jak: Komfort, Domino Łazienki, Fachowiec, Vox, Komandor, Witek Home i innych
Gwarancja
bezpiecznych zakupów
Dodatkowe pakiety projektowe
- Kosztorys inwestorski cena ustalana indywidualnie
- Wentylacja mechaniczna z rekuperacją 700,00 zł
- Wentylacja mechaniczna + GPWC 700,00 zł
- Kolektory Słoneczne 400,00 zł
- Panele Fotowoltaiczne 400,00 zł
- Pompa Ciepła 500,00 zł
- Kominek z DGP 400,00 zł
- Biologiczna oczyszczalnia ścieków 150,00 zł
- Centralny Odkurzacz 300,00 zł
- Szambo przydomowe 200,00 zł
- Dodatkowy egzemplarz projektu 150,00 zł