Ściany: gazobeton, ceramika, silikaty
Dach: dachówka, blachodachówka
Strop: betonowy gęstożebrowy Teriva
ZB1 to projekt w zabudowie bliźniaczej, który dzięki wbudowanemu w bryłę garażowi, zmieści się na stosunkowo wąskiej działce. Ciekawym, urozmaicającym bryłę elementem są lukarny z balkonami, zaprojektowane zarówno od frontu, jak i od strony ogrodu.
Poszczególne części domu wydzielone są przez wielopoziomowe kondygnacje. Na parterze znajduje się otwarty na ogród pokój dzienny z kominkiem. Integracji sprzyja także duża, częściowo otwarta kuchnia sąsiadująca z jadalnią, ulokowaną w uroczym wykuszu. Dom posiada jednostanowiskowy garaż, który połączony jest wspólną sienią z domem.Od strony ogrodu przewidziano balkon oraz częściowo zadaszony taras, na który można wyjść bezpośrednio z jadalni. Latem można wystawić stół i zaaranżować jadalnię na świeżym powietrzu.
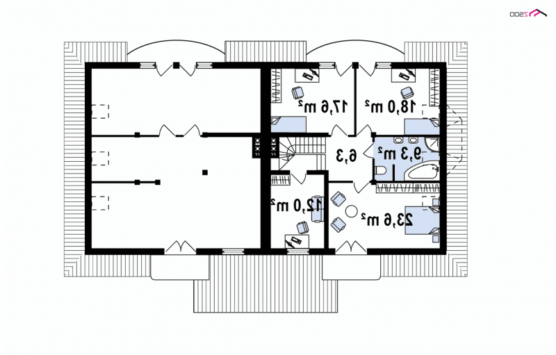
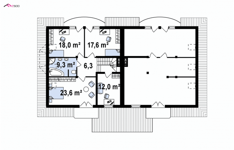
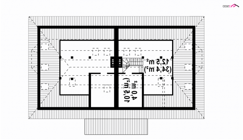
Przestrzeń na indywidualną pracę lub wypoczynek przewidziano na półpiętrze i poddaszu. Cztery pokoje można zaaranżować jako sypialnie lub zrezygnować z jednej na rzecz pokoju do pracy lub pokoju gościnnego dla ukochanej teściowej.Każda sypialnia na poddaszu ma wyjście na balkon. Jako pomieszczenie rekreacyjne lub domową bibliotekę można wykorzystać powstały nad poddaszem dodatkowy strych.
ZB1 został zrealizowany na zlecenie developera, który wybudował już kilka takich segmentów w podwarszawskich Markach i wszystkie szybko się sprzedały! Godnie prezentuje się kilka segmentów postawionych na sąsiadujących ze sobą działkach.