Zb18 to segment piętrowego ale 3 kondygnacyjnego bliźniaka. Jest to segment skrajny, a jego brat to Zb19. Budynki te można łączyć, ponieważ są w tym samym stylu, kolorystyce, obydwa mają garaż, piwnice i dwie kondygnacje nadziemne. Z tyłu 2 tarasy i proste zadaszenia.
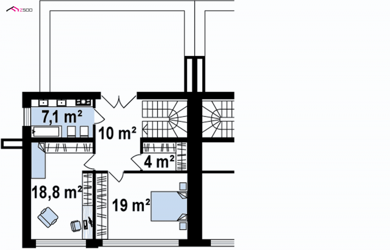
Wnętrze Zb18 stanowi piwnica, pralnia, pomieszczenie gospodarcze, garaż 1 stanowiskowy, oraz pokój rekreacyjny, który można dowolnie zaaranżować. Jeśli jesteśmy wielbicielami siłowni, ping ponga lub bilardu, mamy okazję w pełni wykorzystać pomieszczenie rekreacyjne.
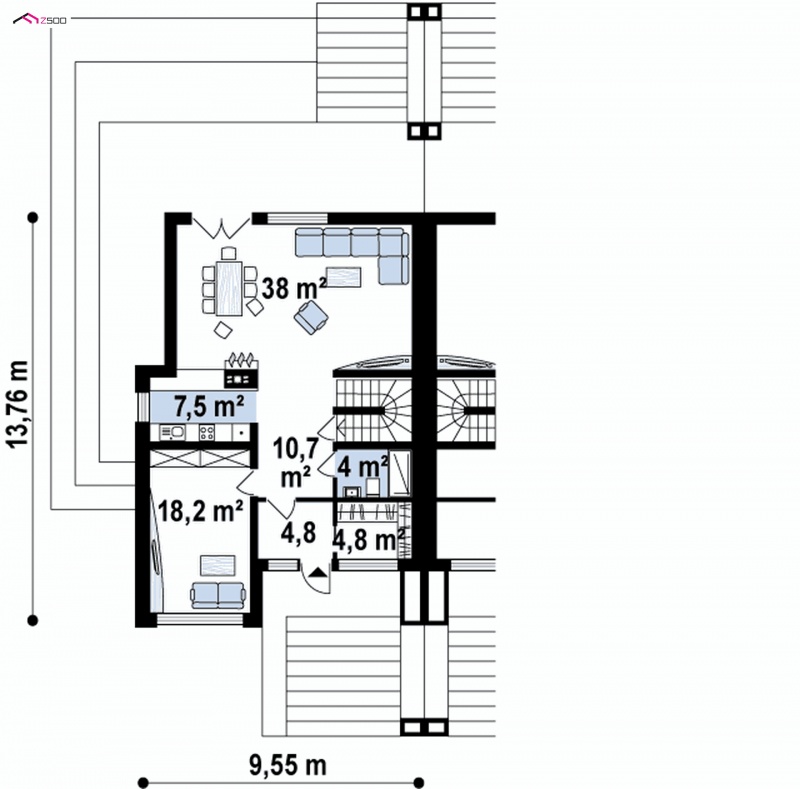
Schodami udajemy się na parter, gdzie zaprojektowano elegancki gabinet, i przytulny salon z urokliwym kominkiem.
Piętro to 2 pokoje, z wyjściem na taras i dużymi przeszkleniami, które doskonale doświetlają wnętrza.
Brat bliźniak Zb19 został zaprojektowany w celu budowy szeregowej. Również jest podpiwniczony, więc można pomieszczenie piwniczne wykorzystać wedle własnych potrzeb. Posiada 2 stanowiskowy garaż, zadaszone wejście, kuchnie połączoną z jadalnią, kominek, sypialnię z łazienką i garderobą.
Góra może stanowić oddzielne mieszkanie, ponieważ na piętrze mieszczą się 3 pokoje, komfortowa garderoba i elegancka łazienka. Istnieje tam ewentualność zaadaptowania garderoby na kuchnię. Dobrego smaku i oryginalności przysporzy dodanie kominku na tarasie.