Ściany zewnętrzne 2-warstwowe: Beton komórkowy ( 24cm) / Pustak ceramiczny (25cm) + styropian 20cm Uściany < 0,20 W/(m2*K) – warunek spełniony.
Ławy fundamentowe tradycyjne: Ściany fundamentowe betonowe gr.24(25cm) z bloczków betonowych lub wylewane.
Stropy: płyta żelbetowa. Zamiennie można zastosować strop gęstożeberkowy typu TERIVA .
Konstrukcja dachu: tradycyjna drewniana, pokrycie dachu z dachówki ceramicznej.
Elewacje: pokryte tynkiem strukturalnym cienkowarstwowym.
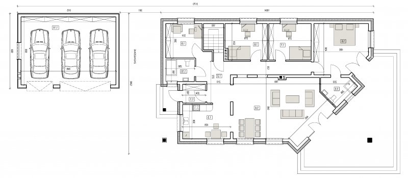
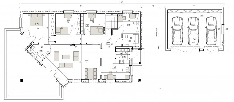
Dom parterowy został opracowany na nietypową działkę na zlecenie indywidualne. Cechą wyróżniającą ten dom spośród innych jest ścięty narożnik części domu od strony salonu, który powoduje że dom pasuje do nietypowej lokalizacji. Garaż 3 stanowiskowy można wykonać w 2 etapie inwestycji lub zrezygnować z niego. Wnętrze domu zostało podzielone na strefę dzienną i nocną. W strefie dziennej znajduje się duży salon o powierzchni ponad 43m2. W strefie nocnej znajdują się 3 sypialnie w tym jedna 2-osobowa z własną łazienką. . Dostępna jest wersja projektu z częściowym podpiwniczeniem. Projekt Dj 1. Projekty podobne ( ze ściętym salonem ): DJ 6, DJ 7, DJ 8, DJ 176. DJ 1c, DJ 1d, DJ 1.
Energooszczędność:
Wersja standardowa:
Projekt spełnia wymagania cieplne dla nowo projektowanych domów określone w WT2008 ( Rozporządzenie Ministra Infrastruktury dotyczące "warunków technicznych ,jakim powinny odpowiadać budynki i ich usytuowanie )
Charakterystyka energetyczna w granicach 120 [kWh/m2/rok]
Wersja energooszczędna:
Projekt dostępny w wersji energooszczędnej .Czas realizacji zamówienia 10dni.
Charakterystyka energetyczna w granicach 75 [kWh/m2/rok]
Projekt w tej wersji posiada instalację wentylacji z odzyskiem ciepła oraz zmodyfikowane grubości izolacji fundamentów, podłóg, ścian, stropów i dachu.