Ściany zewnętrzne 2-warstwowe : Beton komórkowy ( 24cm) / Pustak ceramiczny (25cm) + styropian 20cm Uściany < 0,20 W/(m2*K) – warunek spełniony.
Ławy fundamentowe tradycyjne. Ściany fundamentowe betonowe gr.24(25cm) z bloczków betonowych lub wylewane.
Stropy - płyta żelbetowa . Zamiennie można zastosować strop gęstożeberkowy typu TERIVA .
Konstrukcja dachu - tradycyjna drewniana , pokrycie dachu z dachówki ceramicznej.
Elewacje - pokryte tynkiem strukturalnym cienkowarstwowym.
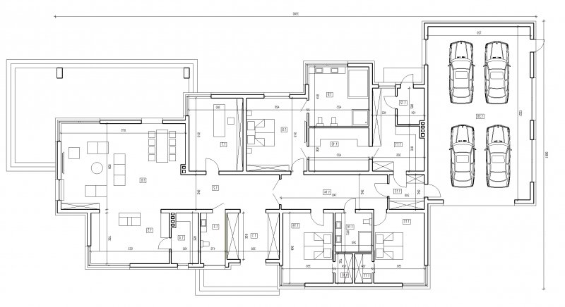
Obszerny dom parterowy o dużych powierzchniach pomieszczeń. Design projektu jest tradycyjny z elementami współczesnymi: duże narożne okna i drzwi balkonowe, wykończenia elementów elewacji z płyt z piaskowca. wewnątrz zaprojektowano duży salon z kominkiem polączony z obszerną otwartą kuchnią z nowoczesną wyspą.
Energooszczędność:
Wersja standardowa:
Projekt spełnia wymagania cieplne dla nowo projektowanych domów określone w wt2008 ( rozporządzenie ministra infrastruktury dotyczące "warunków technicznych ,jakim powinny odpowiadać budynki i ich usytuowanie )
charakterystyka energetyczna w granicach 120 [kwh/m2/rok]
Wersja energooszczędna:
Projekt dostępny w wersji energooszczędnej .czas realizacji zamówienia 10dni.
charakterystyka energetyczna w granicach 75 [kwh/m2/rok]
projekt w tej wersji posiada instalację wentylacji z odzyskiem ciepła oraz zmodyfikowane grubości izolacji fundamentów,podłóg,ścian, stropów i dachu.
1.1 PRZEDSIONEK 12.0
1.2 HALL 16.2
1.3 ŁAZIENKA 6.3
1.4 SCHOWEK 6.5
1.5 KUCHNIA 19.8
1.6 POKÓJ DZIENNY 52.7
1.7 GABINET 19.6
1.8 SYPIALNIA 2 OS. 21.9
1.9 POKÓJ KĄPIELOWY 17.7
1.10 GARDEROBA 12.9
1.11 POM.GOSPODARCZE 15.7
1.12 POM.GOSPODARCZE 4.8
1.13 PRZEDSIONEK 6.1
1.14 PRZEDPOKÓJ 18.3
1.15 POKÓJ 17.6
1.16 ŁAZIENKA 7.2
1.17 GARDEROBA 2.6
1.18 GARDEROBA 2.6
1.19 GARAŻ 4 ST. 88.0