Ściany zewnętrzne 2-warstwowe: Beton komórkowy ( 24cm) / Pustak ceramiczny (25cm) + styropian 20cm Uściany < 0,20 W/(m2*K) – warunek spełniony.
Ławy fundamentowe tradycyjne: Ściany fundamentowe betonowe gr.24(25cm) z bloczków betonowych lub wylewane.
Stropy: płyta żelbetowa. Zamiennie można zastosować strop gęstożeberkowy typu TERIVA .
Konstrukcja dachu: tradycyjna drewniana, pokrycie dachu z dachówki ceramicznej.
Elewacje: pokryte tynkiem strukturalnym cienkowarstwowym.
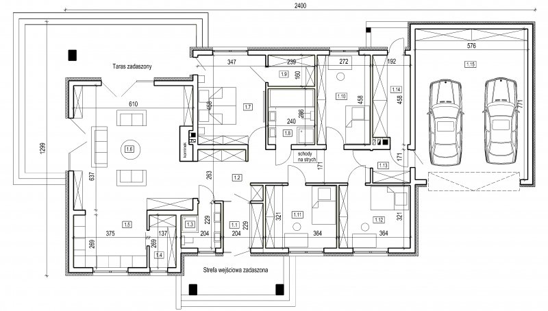
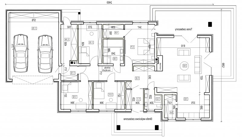
Dom parterowy z bezbłędnie opracowanym układem funkcjonalnym. Zaprojektowany w stylu tradycyjnym. Do bryły budynku został dostawiony obszerny garaż na dwa samochody osobowe. Możliwe jest opracowanie wersji projektu bez garażu lub z garażem jednostanowiskowym.
Energooszczędność:
Wersja standardowa:
Projekt spełnia wymagania cieplne dla nowo projektowanych domów określone w WT2008 (Rozporządzenie Ministra Infrastruktury dotyczące warunków technicznych, jakim powinny odpowiadać budynki i ich usytuowanie). Charakterystyka energetyczna w granicach 120 [kWh/m2/rok].
Wersja energooszczędna:
Projekt dostępny w wersji energooszczędnej .Czas realizacji zamówienia 10dni.
Charakterystyka energetyczna w granicach 75 [kWh/m2/rok].
Projekt w tej wersji posiada instalację wentylacji z odzyskiem ciepła oraz zmodyfikowane grubości izolacji fundamentów, podłóg, ścian, stropów i dachu.
1.1 Przedsionek 4.6
1.2 Hall 17.8
1.3 Łazienka 4.0
1.4 Spiżarnia 3.6
1.5 Kuchnia 10.0
1.6 Pokój dzienny 38.72
1.7 Sypialnia 15.8
1.8 Łazienka 6.8
1.9 Garderoba 3.8
1.10 Sypialnia 12.4
1.11 Sypialnia 11.6
1.12 Sypialnia 11.6
1.13 Przedsionek 3.2
1.14 Pom.gospodarcze 8.5
1.15 Garaż 2 st. 44.2
Pow. użytkowa parteru 152.4
garaż 44.2