Ściany zewnętrzne 2-warstwowe: Beton komórkowy ( 24cm) / Pustak ceramiczny (25cm) + styropian 20cm Uściany < 0,20 W/(m2*K) – warunek spełniony.
Ławy fundamentowe tradycyjne. Ściany fundamentowe betonowe gr.24(25cm) z bloczków betonowych lub wylewane.
Stropy - płyta żelbetowa . Zamiennie można zastosować strop gęstożeberkowy typu TERIVA .
Konstrukcja dachu - tradycyjna drewniana , pokrycie dachu z dachówki ceramicznej.
Elewacje - pokryte tynkiem strukturalnym cienkowarstwowym.
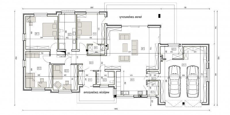
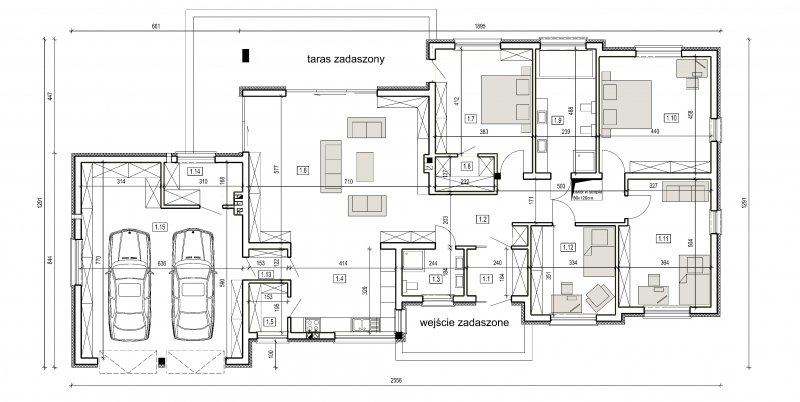
Dom parterowy w stylu współczesnym. Strefa dzienna obejmuje duży salon o powierzchni ponad 40m2 wraz z otwartą kuchnią z możliwością wykonania tzw."wyspy". Strefa nocna, którą można całkowicie odizolować od strefy dziennej, zawiera 4 sypialnie wraz z łazienką. Dom posiada wygodny garaż na 2 samochody osobowe o szerokości 6.3m.
Energooszczędność:
Wersja standardowa:
Projekt spełnia wymagania cieplne dla nowo projektowanych domów określone w wt2008 (rozporządzenie ministra infrastruktury dotyczące "warunków technicznych ,jakim powinny odpowiadać budynki i ich usytuowanie)
charakterystyka energetyczna w granicach 120 [kwh/m2/rok]
Wersja energooszczędna:
Projekt dostępny w wersji energooszczędnej. Czas realizacji zamówienia 10dni.
charakterystyka energetyczna w granicach 75 [kwh/m2/rok]
projekt w tej wersji posiada instalację wentylacji z odzyskiem ciepła oraz zmodyfikowane grubości izolacji fundamentów, podłóg, ścian, stropów i dachu.
1.1 PRZEDSIONEK 4.3
1.2 HALL 14.4
1.3 ŁAZIENKA 4.6
1.4 KUCHNIA 14.0
1.5 SPIŻARNIA 2.9
1.6 POKÓJ DZIENNY 40.4
1.7 SYPIALNIA 16.6
1.8 GARDEROBA 3.1
1.9 ŁAZIENKA 11.4
1.10 SYPIALNIA 19.9
1.11 SYPIALNIA 17.2
1.12 SYPIALNIA 11.5
1.13 PRZEDSIONEK 1.7
1.14 POM.GOSPODARCZE 4.8
1.15 GARAŻ 2 ST. 42.6
PU. PARTERU BEZ GARAŻU 166.8
RAZEM PU. PARTERU 209.4