Dane techniczne
- Powierzchnia użytkowa 136.00 m²
- Powierzchnia zabudowy 189.80 m²
- Kubatura 983.10 m³
- Kąt nachylenia dachu 25.00°
- Wysokość budynku 5.10 m
- Min. wymiary działki 25.50x23.50 m
- Garaż 44.00 m²
- Pracownia MOJ-DOM
Technologia budowy
Fundamenty: żelbetowe, wylewane
Ściany zewnetrzne: murowane, dwuwarstwowe, beton komórkowy lub ceramika
Strop: drewniany, belkowy, zamknięty i żelbetonowy, wylewany
Schody: żelbetowe
Pokrycie dachu: dachówka betonowa
Nachylenie dachu: 25°
Opis
Budynek jednorodzinny, parterowy, podpiwniczony, 4 pokoje, kuchnia, jadalnia, garaż
Rzuty
1. garaż44.0 m2
2. pom.gosp.16.8 m2
3. kotłownia4.6 m2
4. pom.gosp.7.4 m2
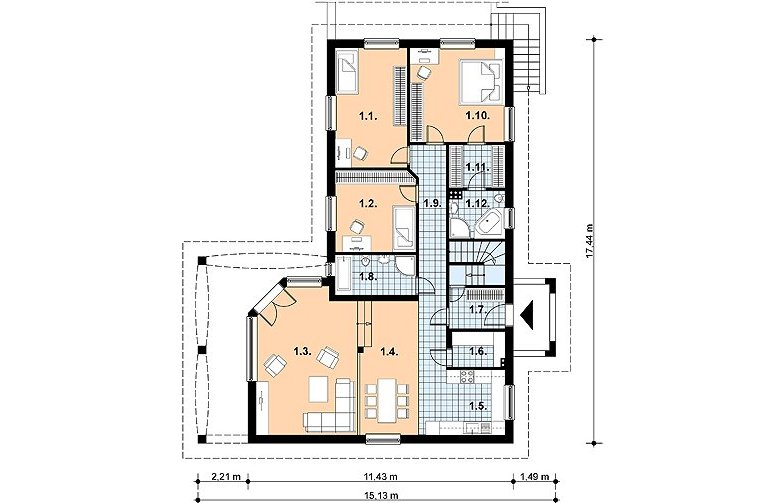
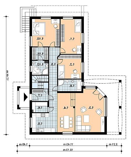
1. sypialnia16.1 m2
2. sypialnia12.2 m2
3. pokój dzienny26.1 m2
4. jadalnia18.7 m2
5. kuchnia7.1 m2
6. spiżarnia3.3 m2
7. wiatrołap4.3 m2
8. łazienka5.9 m2
9. korytarz12.1 m2
10. sypialnia16.6 m2
11. garderoba4.3 m2
12. łazienka4.7 m2
13. schody4.6 m2
Rzuty
1. garaż44.0 m2
2. pom.gosp.16.8 m2
3. kotłownia4.6 m2
4. pom.gosp.7.4 m2
1. sypialnia16.1 m2
2. sypialnia12.2 m2
3. pokój dzienny26.1 m2
4. jadalnia18.7 m2
5. kuchnia7.1 m2
6. spiżarnia3.3 m2
7. wiatrołap4.3 m2
8. łazienka5.9 m2
9. korytarz12.1 m2
10. sypialnia16.6 m2
11. garderoba4.3 m2
12. łazienka4.7 m2
13. schody4.6 m2
Dbamy o swoich Klientów, jak nikt inny!
Do każdego projektu zakupionego za pośrednictwem serwisu kreoDOM.pl otrzymasz książeczkę z rabatami na zakupy w firmach Komfort, Fachowiec, Domino Łazienki, Komandor, Witek Home i innych. Książeczka na pewno okaże się przydatna podczas urządzania Twojego wymarzonego domu!
Książeczka z rabatami do takich firm jak: Komfort, Domino Łazienki, Fachowiec, Vox, Komandor, Witek Home i innych
Gwarancja
bezpiecznych zakupów
Dodatkowe pakiety projektowe