Dane techniczne
- Powierzchnia użytkowa 99.72 m²
- Powierzchnia zabudowy 211.80 m²
- Kubatura 723.50 m³
- Kąt nachylenia dachu 35.00°
- Powierzchnia dachu 327.20 m²
- Wysokość budynku 6.95 m
- Min. wymiary działki 24.40x22.80 m
- Pracownia LK & Projekt
Technologia budowy
- Elewacje: wykończone tynkiem silikonowym, cegłą klinkierową Terca Stratus firmy Wienerberger, okładzina drewniana, kamień naturalny łupany
- Okna i drzwi balkonowe: drewniane
- Sposób ogrzewania: kocioł na gaz
- Pokrycie dachu: dachówką ceramiczną Koramic Płaska Actua 10 firmy Wienerberger
- Ściany wewnętrzne: z pustaków ceramicznych Porotherm Profi gr. 25, 11.5 i 8 cm firmy Wienerberger
- Ściany zewnętrzne: z pustaków ceramicznych Porotherm Profi o gr.30 cm firmy Wienerberger ocieplone styropianem Gold Fasada o gr.20 cm firmy Termo Organia
- Konstrukcja dachu: drewniana docieplona wełną mineralną gr. 30 cm
- Wentylacja: grawitacyjna
- Ściany fundamentowe: z pustaków szalunkowych o gr.30 cm, z bloczków betonowych o gr.12 cm, ocieplone styropianem Gold fundament o gr.20 cm
- Ławy fundamentowe: żelbetowe
- Koszt orientacyjny (bez Vat): 219 384.00 zł.
Opis
Tradycyjny dom parterowy dla rodziny 3-4 osobowej. Posiada dwie sypialnie, pokój dzienny połączony z jadalnią oraz kotłownie z pralnią.
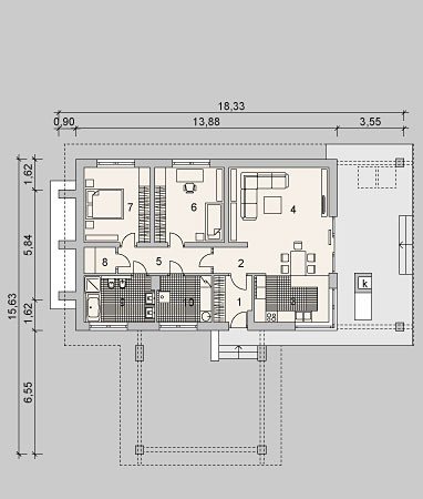
Rzuty
PARTER
Parter
1. Sień 4.90m
2. Hall 2.56m
3. Kuchnia 10.10m
4. Pokój dzienny z jadalnią 28.16m
5. Korytarz 6.96m
6. Sypialnia 14.71m
7. Sypialnia 2 13.91m
8. Schowek 2.36m
9. Łazienka 9.07m
10. Kotłownia z pralnią 6.99m
Rzuty
PARTER
Parter
1. Sień 4.90m
2. Hall 2.56m
3. Kuchnia 10.10m
4. Pokój dzienny z jadalnią 28.16m
5. Korytarz 6.96m
6. Sypialnia 14.71m
7. Sypialnia 2 13.91m
8. Schowek 2.36m
9. Łazienka 9.07m
10. Kotłownia z pralnią 6.99m
Dbamy o swoich Klientów, jak nikt inny!
Do każdego projektu zakupionego za pośrednictwem serwisu kreoDOM.pl otrzymasz książeczkę z rabatami na zakupy w firmach Komfort, Fachowiec, Domino Łazienki, Komandor, Witek Home i innych. Książeczka na pewno okaże się przydatna podczas urządzania Twojego wymarzonego domu!
Książeczka z rabatami do takich firm jak: Komfort, Domino Łazienki, Fachowiec, Vox, Komandor, Witek Home i innych
Gwarancja
bezpiecznych zakupów
Dodatkowe pakiety projektowe
- Kosztorys inwestorski cena ustalana indywidualnie
- Kolektory słoneczne cena ustalana indywidualnie
- Kominek z DGP cena ustalana indywidualnie
- Wentylacja mechaniczna z rekuperacją cena ustalana indywidualnie
- Pompa ciepła cena ustalana indywidualnie