Dane techniczne
- Powierzchnia użytkowa 83.31 m²
- Powierzchnia zabudowy 109.05 m²
- Kubatura 298.14 m³
- Kąt nachylenia dachu 35.00°
- Powierzchnia dachu 163.46 m²
- Wysokość budynku 6.70 m
- Min. wymiary działki 21.01x16.80 m
- Pracownia LK & Projekt
Technologia budowy
- Ławy fundamentowe: żelbetowe
- Ściany fundamentowe: betonowe
- Ściany zewnętrzne: z pustaków " MAX" gr. 29 cm, docieplone styropianem Termo Organika gr.12 cm
- Ściany wewnętrzne: z cegły kratówki gr.25, 12 cm
- Strop: żelbetowy
- Konstrukcja dachu: drewniana docieplona wełną mineralną gr. 17 cm firmy Ursa
- Pokrycie dachu: dachówką ceramiczną
- Elewacje: wykończone tynkiem silikonowym, cokoły otynkowane
- Okna i drzwi balkonowe: drewniane, okna połaciowe firmy Velux
- Sposób ogrzewania: kocioł na gaz
- Wentylacja: grawitacyjna
- Stan na kwartał: I 2010 zł.
- Roboty budowlane stanu zerowego: 29 273.50 zł.
- Stan surowy zadaszony: 76 372.23 zł.
- Stolarka: 20 595.94 zł.
- Roboty budowlane stanu wykończeniowego: 57 292.31 zł.
- Instalacje: 29 400.00 zł.
- Koszt budowy ogółem (bez VAT): 212 933.98 zł.
Opis
Dom jednorodzinny, parterowy, z poddaszem nieużytkowym.
Rzuty
PARTER
Parter
1. Sień 4.45m
2. Hall 8.70m
3. Pralnia z kotłownią 4.96m
4. Sypialnia 7.18m
5. Łazienka 3.56m
6. Sypialnia 2 10.47m
7. Sypialnia 3 11.16m
8. Pokój dzienny 17.25m
9. Jadalnia 5.65m
10. Kuchnia 9.07m
11. Schowek 0.86m
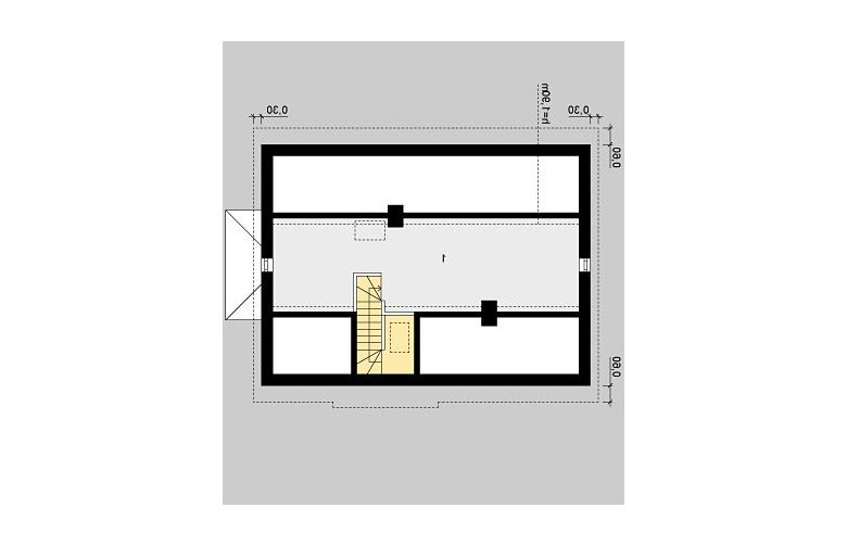
STRYCH
Strych
1. Pomieszczenie gospodarcze (37.10) 33.29m
Rzuty
PARTER
Parter
1. Sień 4.45m
2. Hall 8.70m
3. Pralnia z kotłownią 4.96m
4. Sypialnia 7.18m
5. Łazienka 3.56m
6. Sypialnia 2 10.47m
7. Sypialnia 3 11.16m
8. Pokój dzienny 17.25m
9. Jadalnia 5.65m
10. Kuchnia 9.07m
11. Schowek 0.86m
STRYCH
Strych
1. Pomieszczenie gospodarcze (37.10) 33.29m
Dbamy o swoich Klientów, jak nikt inny!
Do każdego projektu zakupionego za pośrednictwem serwisu kreoDOM.pl otrzymasz książeczkę z rabatami na zakupy w firmach Komfort, Fachowiec, Domino Łazienki, Komandor, Witek Home i innych. Książeczka na pewno okaże się przydatna podczas urządzania Twojego wymarzonego domu!
Książeczka z rabatami do takich firm jak: Komfort, Domino Łazienki, Fachowiec, Vox, Komandor, Witek Home i innych
Gwarancja
bezpiecznych zakupów
Dodatkowe pakiety projektowe
- Kosztorys inwestorski cena ustalana indywidualnie
- Kolektory słoneczne cena ustalana indywidualnie
- Kominek z DGP cena ustalana indywidualnie
- Wentylacja mechaniczna z rekuperacją cena ustalana indywidualnie
- Pompa ciepła cena ustalana indywidualnie