Dane techniczne
- Powierzchnia użytkowa 272.35 m²
- Powierzchnia zabudowy 381.99 m²
- Kubatura 2051.60 m³
- Kąt nachylenia dachu 35.00°
- Powierzchnia dachu 635.15 m²
- Wysokość budynku 11.10 m
- Min. wymiary działki 34.90x34.25 m
- Garaż 230.68 m²
- Pracownia LK & Projekt
Technologia budowy
- Wentylacja: mechaniczna z rekuperacją
- Pokrycie dachu: dachówką ceramiczną 'Koramic' firmy 'Wienerberger'
- Elewacje: wykończone tynkiem silikonowym, na fragmentach okładzina z płyt wapiennych
- Okna i drzwi balkonowe: aluminiowe
- Konstrukcja dachu: drewniana, ocieplona wełną mineralną gr. 36 cm firmy Rockwool
- Ściany wewnętrzne: z pustaków ceramicznych 'Porotherm P+W' gr. 25, 11.5 cm firmy Wienerberger
- Sposób ogrzewania: kocioł na gaz, ogrzewanie podłogowe wspomagane grzejnikami tradycyjnymi oraz kanałowymi
- Strop: żelbetowy
- Ławy fundamentowe: żelbetowe
- Ściany fundamentowe: betonowe o gr.30 cm ocieplone styropianem 'Gold fundament' firmy Termo Organika gr.20 cm
- Ściany zewnętrzne: z pustaków ceramicznych 'Porotherm 30 P+W' o gr.30 cm firmy Wienerberger ocieplone styropianem 'Platinum fasada' firmy Wienerberger o gr.20 cm
- Koszt orientacyjny (bez Vat): 1 600 000.00 zł.
Opis
Projekt domu parterowego z użytkowym poddaszem.
Rzuty
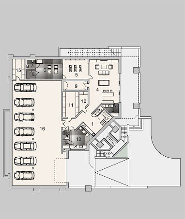
PIWNICA
Piwnica
1. Hall 29.26m
2. Pomieszczenie gospodarcze 2.00m
3. Pomieszczenie gospodarcze 2 5.96m
4. Kino domowe 59.27m
5. Fitness 22.00m
6. Pokój rekreacyjny 22.00m
7. WC 4.26m
8. Sauna 4.26m
9. Piwniczka na wino 9.32m
10. Pomieszczenie techniczne 6.25m
11. Garderoba 17.24m
12. Kotłownia z pralnią 15.17m
13. WC 2 2.25m
14. Pomieszczenie gospodarcze 3 2.51m
15. Pomieszczenie gospodarcze 4 10.89m
16. Garaż 230.68m
PARTER
Parter
1. Sień 20.22m
2. Pokój dzienny 46.85m
3. Jadalnia 17.33m
4. Kuchnia 15.59m
5. Pokój telewizyjny 25.93m
6. Sypialnia 19.28m
7. Spiżarka 4.80m
8. Pomieszczenie gospodarcze 3.66m
9. Hall 7.21m
10. Garderoba 6.21m
11. Łazienka 5.62m
12. Hall 2 12.11m
13. WC 2.32m
14. Garderoba 2 3.14m
15. Sypialnia 2 21.66m
16. Łazienka 2 10.00m
17. Garderoba 3 7.67m
18. Pokój biurowy 15.23m
19. Hall 3 4.83m
20. Sypialnia 3 15.75m
21. Łazienka 3 6.94m
Rzuty
PIWNICA
Piwnica
1. Hall 29.26m
2. Pomieszczenie gospodarcze 2.00m
3. Pomieszczenie gospodarcze 2 5.96m
4. Kino domowe 59.27m
5. Fitness 22.00m
6. Pokój rekreacyjny 22.00m
7. WC 4.26m
8. Sauna 4.26m
9. Piwniczka na wino 9.32m
10. Pomieszczenie techniczne 6.25m
11. Garderoba 17.24m
12. Kotłownia z pralnią 15.17m
13. WC 2 2.25m
14. Pomieszczenie gospodarcze 3 2.51m
15. Pomieszczenie gospodarcze 4 10.89m
16. Garaż 230.68m
PARTER
Parter
1. Sień 20.22m
2. Pokój dzienny 46.85m
3. Jadalnia 17.33m
4. Kuchnia 15.59m
5. Pokój telewizyjny 25.93m
6. Sypialnia 19.28m
7. Spiżarka 4.80m
8. Pomieszczenie gospodarcze 3.66m
9. Hall 7.21m
10. Garderoba 6.21m
11. Łazienka 5.62m
12. Hall 2 12.11m
13. WC 2.32m
14. Garderoba 2 3.14m
15. Sypialnia 2 21.66m
16. Łazienka 2 10.00m
17. Garderoba 3 7.67m
18. Pokój biurowy 15.23m
19. Hall 3 4.83m
20. Sypialnia 3 15.75m
21. Łazienka 3 6.94m
Dbamy o swoich Klientów, jak nikt inny!
Do każdego projektu zakupionego za pośrednictwem serwisu kreoDOM.pl otrzymasz książeczkę z rabatami na zakupy w firmach Komfort, Fachowiec, Domino Łazienki, Komandor, Witek Home i innych. Książeczka na pewno okaże się przydatna podczas urządzania Twojego wymarzonego domu!
Książeczka z rabatami do takich firm jak: Komfort, Domino Łazienki, Fachowiec, Vox, Komandor, Witek Home i innych
Gwarancja
bezpiecznych zakupów
Dodatkowe pakiety projektowe
- Kosztorys inwestorski cena ustalana indywidualnie
- Kolektory słoneczne cena ustalana indywidualnie
- Kominek z DGP cena ustalana indywidualnie
- Wentylacja mechaniczna z rekuperacją cena ustalana indywidualnie
- Pompa ciepła cena ustalana indywidualnie