Dane techniczne
- Powierzchnia użytkowa 137.05 m²
- Powierzchnia zabudowy 233.70 m²
- Kubatura 544.80 m³
- Kąt nachylenia dachu 30.00°
- Powierzchnia dachu 198.35 m²
- Wysokość budynku 7.60 m
- Min. wymiary działki 23.00x25.00 m
- Garaż 34.22 m²
- Pracownia Archipelag
Technologia budowy
Dom zaprojektowany w technologii murowej ze stropem gęstożebrowym. Dach o konstrukcji drewnianej pokryty blachą na rąbek stojący Classic firmy Ruukki. Elewacje wykończono tynkiem mineralnym i okładziną drewnianą. Cokoły kamienne lub wykończone tynkiem. Stolarka okienna drewniana lub PCV.
Opis
Dom parterowy, niepodpiwniczony, z możliwością adaptacji poddasza, z garażem dwustanowiskowym przeznaczony dla 4-5 osobowej rodziny. Strefa dzienna to funkcjonalna kuchnia, przestronny pokój dzienny, połączony z przeszkloną jadalnią oraz niewielka łazienka. Oddzielona strefa nocna to trzy sypialnie z łazienką. Elementem wyróżniającym dom jest świetlik w szczycie dachu doświetlający poddasze. Strefa gospodarcza została umiejscowiona za dwustanowiskowym garażem. Dom Lorena G2 to komfortowa propozycja dla miłośników oryginalnego designu. W bryłę budynku ciekawie wkomponowano garaż, uwagę zwraca również interesująca linia zadaszenia, która osłania strefę wejściową oraz część tarasu. Architektura domu koresponduje z najnowszymi trendami, stąd obecność dużych przeszkleń, przesuwnych żaluzji, a także drewnianych, składanych okiennic – regulowanych automatycznie lub ręcznie. Atrakcyjnym elementem Loreny jest zlokalizowany w szczycie dachu świetlik tunelowy, dzięki któremu poddasze wypełnia ciepły blask słonecznych promieni, a cała bryła zyskuje intrygujący pazur nowoczesności. Istnieje możliwość: - podpiwniczenia budynku
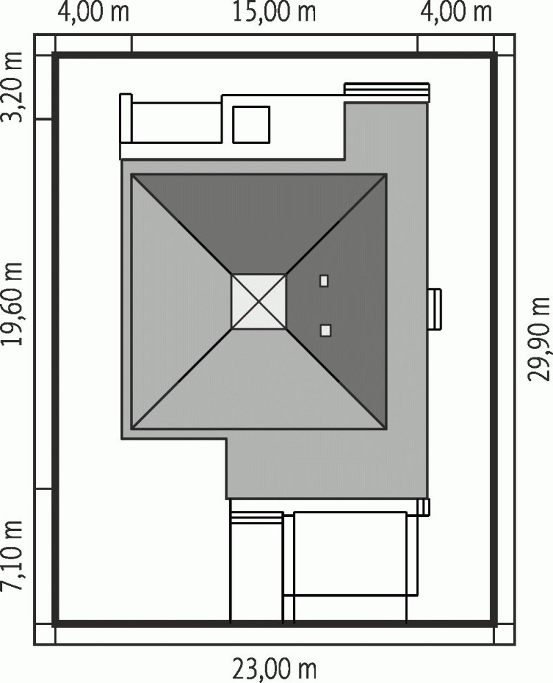
Rzuty
PARTER
- Wiatrołap 5.32 m2
- Hol schody 17.89 m2
- Kuchnia 10.63 m2
- Pokój dzienny jadalnia 39.05 m2
- Łazienka 2.73 m2
- Korytarz 5.67 m2
- Sypialnia 18.04 m2
- Sypialnia 14.10 m2
- Sypialnia 14.34 m2
- Łazienka 9.28 m2
- Kotłownia 11.94 m2
- Garaż 34.22 m2
PODDASZE DO ADAPTACJI
- Poddasze do adaptacji 36.83 m2
Rzuty
PARTER
- Wiatrołap 5.32 m2
- Hol schody 17.89 m2
- Kuchnia 10.63 m2
- Pokój dzienny jadalnia 39.05 m2
- Łazienka 2.73 m2
- Korytarz 5.67 m2
- Sypialnia 18.04 m2
- Sypialnia 14.10 m2
- Sypialnia 14.34 m2
- Łazienka 9.28 m2
- Kotłownia 11.94 m2
- Garaż 34.22 m2
PODDASZE DO ADAPTACJI
- Poddasze do adaptacji 36.83 m2
Dbamy o swoich Klientów, jak nikt inny!
Do każdego projektu zakupionego za pośrednictwem serwisu kreoDOM.pl otrzymasz książeczkę z rabatami na zakupy w firmach Komfort, Fachowiec, Domino Łazienki, Komandor, Witek Home i innych. Książeczka na pewno okaże się przydatna podczas urządzania Twojego wymarzonego domu!
Książeczka z rabatami do takich firm jak: Komfort, Domino Łazienki, Fachowiec, Vox, Komandor, Witek Home i innych
Gwarancja
bezpiecznych zakupów
Dodatkowe pakiety projektowe
- Kosztorys inwestorski cena ustalana indywidualnie
- Wentylacja mechaniczna z rekuperacją 700,00 zł
- Wentylacja mechaniczna + GPWC 700,00 zł
- Kolektory Słoneczne 400,00 zł
- Panele Fotowoltaiczne 400,00 zł
- Pompa Ciepła 500,00 zł
- Kominek z DGP 400,00 zł
- Biologiczna oczyszczalnia ścieków 150,00 zł
- Centralny Odkurzacz 300,00 zł
- Szambo przydomowe 200,00 zł
- Dodatkowy egzemplarz projektu 150,00 zł