Dane techniczne
- Powierzchnia użytkowa 118.23 m²
- Powierzchnia zabudowy 206.66 m²
- Kubatura 489.50 m³
- Kąt nachylenia dachu 30.00°
- Powierzchnia dachu 291.38 m²
- Wysokość budynku 7.36 m
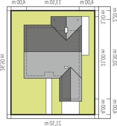
- Min. wymiary działki 21.50x26.50 m
- Garaż 20.07 m²
- Pracownia Archipelag
Technologia budowy
Fundamenty: ławy, bloczki betonowe 24 cm, ocieplenie styropian 15 cm
Ściany zewnętrzne: murowane, dwuwarstwowe, beton komórkowy firmy H+H 24 cm, ocieplenie 20 cm
Ściany wewnętrzne: murowane, bloczki betonu komórkowego firmy H+H 24 cm i 11,5 cm
Strop: strop gęstożebrowy Teriva, ocieplenie wełna mineralna 30 cm
Dach: konstrukcja drewniana, ocieplenie wełna mineralna 30 cm, dachówka ceramiczna płaska Bergamo firmy Röben w kolorze antracytowym
Inne: w przypadku wykorzystania poddasza jako mieszkalne - schody wewnętrzne drewniane
Rozwiązania instalacyjne:
Ogrzewanie: kocioł gazowy kondensacyjny, rozprowadzenie ciepła: grzejniki
Wentylacja: grawitacyjna
Wykończenie:
Elewacje: tynk cienkowarstwowy mineralny w kolorze TO-PA001 z palety firmy Termo Organika i okładzina drewniana
Stolarka: drewniana, PVC lub aluminiowa, rolety zewnętrzne w systemie CleverBox firmy BeClever
Opis
Simon G1 to dom, który spełni oczekiwania nawet najbardziej wymagających inwestorów – nowoczesny, energooszczędny i ze świetnie zorganizowaną funkcją. Jego dużym atutem jest wnętrze maksymalnie skoncentrowane na codziennej wygodzie domowników oraz rewelacyjny taras, na którym czas płynie wolniej.
Rzuty
PARTER
- Wiatrołap 4.32 m2
- Hol schody 14.40 m2
- Kuchnia 11.00 m2
- Spiżarnia 2.34 m2
- Pokój dzienny 34.08 m2
- Toaleta 1.54 m2
- Korytarz 6.24 m2
- Sypialnia 17.03 m2
- Sypialnia 10.49 m2
- Sypialnia 9.22 m2
- Łazienka 7.57 m2
- Kotłownia 10.59 m2
- Garaż 20.07 m2
PODDASZE DO ADAPTACJI
- Poddasze do adaptacji 57.00 m2
Rzuty
PARTER
- Wiatrołap 4.32 m2
- Hol schody 14.40 m2
- Kuchnia 11.00 m2
- Spiżarnia 2.34 m2
- Pokój dzienny 34.08 m2
- Toaleta 1.54 m2
- Korytarz 6.24 m2
- Sypialnia 17.03 m2
- Sypialnia 10.49 m2
- Sypialnia 9.22 m2
- Łazienka 7.57 m2
- Kotłownia 10.59 m2
- Garaż 20.07 m2
PODDASZE DO ADAPTACJI
- Poddasze do adaptacji 57.00 m2
Dbamy o swoich Klientów, jak nikt inny!
Do każdego projektu zakupionego za pośrednictwem serwisu kreoDOM.pl otrzymasz książeczkę z rabatami na zakupy w firmach Komfort, Fachowiec, Domino Łazienki, Komandor, Witek Home i innych. Książeczka na pewno okaże się przydatna podczas urządzania Twojego wymarzonego domu!
Książeczka z rabatami do takich firm jak: Komfort, Domino Łazienki, Fachowiec, Vox, Komandor, Witek Home i innych
Gwarancja
bezpiecznych zakupów
Dodatkowe pakiety projektowe
- Kosztorys inwestorski cena ustalana indywidualnie
- Wentylacja mechaniczna z rekuperacją 700,00 zł
- Wentylacja mechaniczna + GPWC 700,00 zł
- Kolektory Słoneczne 400,00 zł
- Panele Fotowoltaiczne 400,00 zł
- Pompa Ciepła 500,00 zł
- Kominek z DGP 400,00 zł
- Biologiczna oczyszczalnia ścieków 150,00 zł
- Centralny Odkurzacz 300,00 zł
- Szambo przydomowe 200,00 zł
- Dodatkowy egzemplarz projektu 150,00 zł