Dach: dachówka lub blachodachówka
Elewacje: tynk
Strop: żelbetowy
Ściany wewnętrzne: murowane
Ściany zewnętrzne: dwuwarstwowe, pustak ceramiczny, docieplony styropianem
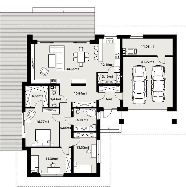
Parterowy dom jednorodzinny, niepodpiwniczony z dwustanowiskowym garażem. Ten wygodny dom, swoim pełnym programem funkcjonalnym zapewnia komfort 4-osobowej rodzinie. Przestronna część dzienne to salon połączony z jadalnią, otwierający się na ogród poprzez ogromne przeszklenie oraz otwarta kuchnia wraz z półwyspem i ze spiżarnią. Tak zaproponowany, ciekawy i przestronny układ pomieszczeń umożliwia dowolność i szereg aranżacji. Część nocna to 3 wygodne sypialnie, z czego największa posiada garderobę oraz łazienka, gdzie przewidziano miejsce na pralkę. W domu zaprojektowano dużą kotłownię dostępną z garażu, której parametry pozwalają na montaż kotła na każdy rodzaj paliwa, w tym na paliwo stałe. Sam garaż, którego wielkość przekracza parametry standardowego garażu jednostanowiskowego, umożliwia umieszczenie tam np. kosiarki. Ten optymalny i ciekawy program funkcjonalny został ujęty w prostej bryle na rzucie litery L, przykrytej wielospadowym dachem. Atutem projektu jest jego prostota zarówno w układzie pomieszczeń jak i w rozwiązaniach elewacji, gdzie elegancki, nowoczesny styl osiągnięto poprzez klasyczne, proste ale szlachetne materiały takie jak szalówka oraz delikatny, subtelny detal.