Dane techniczne
- Powierzchnia użytkowa 127.82 m²
- Powierzchnia zabudowy 185.74 m²
- Kubatura 409.72 m³
- Kąt nachylenia dachu 30.00°
- Powierzchnia dachu 262.30 m²
- Wysokość budynku 6.00 m
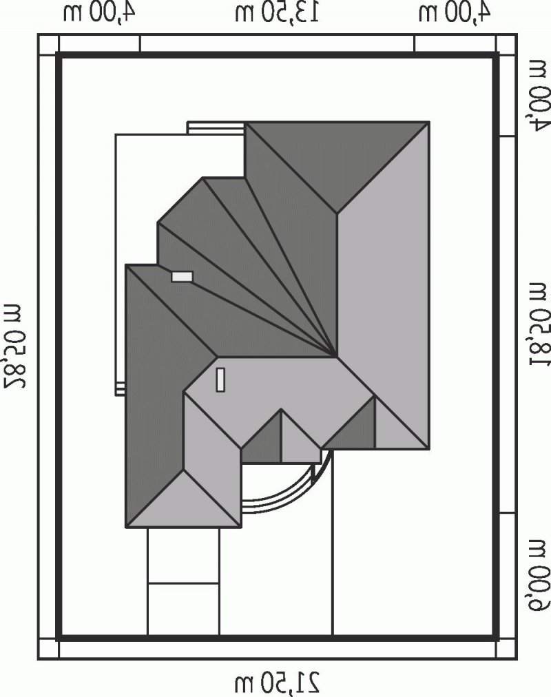
- Min. wymiary działki 21.50x28.50 m
- Garaż 18.95 m²
- Pracownia Archipelag
Technologia budowy
Dom budowany w technologii murowej. Strop o konstrukcji drewnianej. Dach pokryty dachówką cementową lub ceramiczną. Elewacje wykończone tynkiem barwionym i drewnem.
Opis
Dom parterowy niepodpiwniczony przeznaczony dla 4-osobowej rodziny. Pokój dzienny ma ciekawy nieregularny kształt. Połączony jest z kuchnią ścianką działową co umożliwia stworzenie z obydwu tych pomieszczeń jednej przestrzeni. Strefa nocna została umieszczona w lewym skrzydle domu.
Rzuty
PARTER
- Wiatrołap 5.88 m2
- Hol 14.46 m2
- Kuchnia 16.73 m2
- Spiżarnia 3.16 m2
- Salon 27.53 m2
- Gabinet 9.36 m2
- Łazienka 2.20 m2
- Łazienka 6.54 m2
- Sypialnia 12.15 m2
- Sypialnia 14.95 m2
- Sypialnia 11.38 m2
- Kotłownia 3.48 m2
- Garaż 18.95 m2
Rzuty
PARTER
- Wiatrołap 5.88 m2
- Hol 14.46 m2
- Kuchnia 16.73 m2
- Spiżarnia 3.16 m2
- Salon 27.53 m2
- Gabinet 9.36 m2
- Łazienka 2.20 m2
- Łazienka 6.54 m2
- Sypialnia 12.15 m2
- Sypialnia 14.95 m2
- Sypialnia 11.38 m2
- Kotłownia 3.48 m2
- Garaż 18.95 m2
Dbamy o swoich Klientów, jak nikt inny!
Do każdego projektu zakupionego za pośrednictwem serwisu kreoDOM.pl otrzymasz książeczkę z rabatami na zakupy w firmach Komfort, Fachowiec, Domino Łazienki, Komandor, Witek Home i innych. Książeczka na pewno okaże się przydatna podczas urządzania Twojego wymarzonego domu!
Książeczka z rabatami do takich firm jak: Komfort, Domino Łazienki, Fachowiec, Vox, Komandor, Witek Home i innych
Gwarancja
bezpiecznych zakupów
Dodatkowe pakiety projektowe
- Kosztorys inwestorski cena ustalana indywidualnie
- Wentylacja mechaniczna z rekuperacją 700,00 zł
- Wentylacja mechaniczna + GPWC 700,00 zł
- Kolektory Słoneczne 400,00 zł
- Panele Fotowoltaiczne 400,00 zł
- Pompa Ciepła 500,00 zł
- Kominek z DGP 400,00 zł
- Biologiczna oczyszczalnia ścieków 150,00 zł
- Centralny Odkurzacz 300,00 zł
- Szambo przydomowe 200,00 zł
- Dodatkowy egzemplarz projektu 150,00 zł