ŚCIANY gazobeton, ceramika, silikaty
STROP betonowy gęstożebrowy, drewniany
DACH dachówka, blachodachówka, gont
Z351 to dom dwulokalowy z tradycyjnym dachem dwuspadowym. Aranżację przyziemia stanowią klomby na tarasie. Elewację wykończono płytkami klinkierowymi. W połączeniu z kompozycją z pergoli są one znakomitym akcentem architektonicznym dopełniającym całość budynku.
Parter to dzienna strefa domu. Stanowią go dwa oddzielne mieszkania połączone pomieszczeniem gospodarczym, które można zamknąć z każdej strony aby uzyskać efekt prywatności. Lewe skrzydło jest większe niż prawe. Pozwala nam to dysponować mieszkaniami w zależności od naszych potrzeb. Oddzielne sienie zaprojektowano po to, aby między rodzinami nie powstawały konflikty na tle zamiatania naniesionego piasku. Kolejny atut stanowią oddzielne łazienki, kuchnie, salon z jadalnią, gdzie znakomicie można wypocząć przy ciepłym kominku.
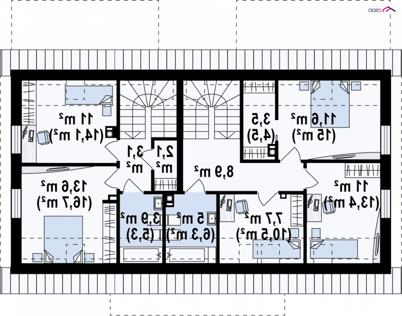
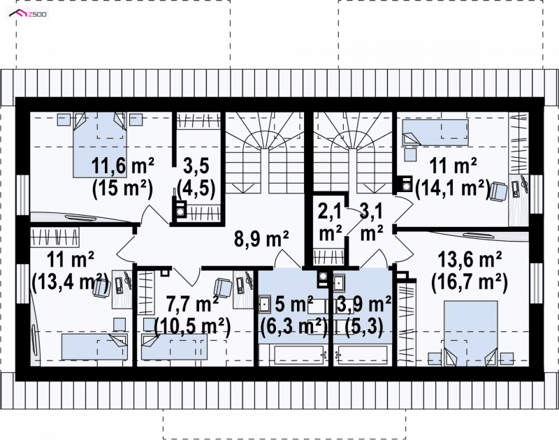
Piętro to również dwa oddzielne mieszkania, niepołączone ze sobą przejściem jak w przypadku parteru. Lewe skrzydło posiada 3 pokoje, z których jeden sąsiaduje z przylegającą prywatną garderobą. Prawe skrzydło, mniejsze, posiada dwa pokoje i łazienkę oraz schowek na szczotki lub ubrania, to od nas i naszych potrzeb zależy jak wykorzystamy to pomieszczenie.
Budynek dedykowany jest dla osób, które chcą jedno mieszkanie wynająć drugie zajmować samemu. Z biegiem czasu, gdy dzieci podrosną, mogą zamieszkiwać w jednym skrzydle a rodzice w drugim. Podkreślenie wejścia głównego oraz wejść tarasowych przez białe formy architektoniczne oraz kompozycja z pergolami stanowią kunsztowne wykończenie praktycznego domu dwulokalowego.