Budynek wykonany w technologii tradycyjnej. Ściany warstwowe grubości 30cm, murowane z pustaków ceramicznych „MAX” grubości 25cm, ocieplone styropianem grubości 5cm. Ściany wewnętrzne z pustaków ceramicznych „MAX” grubości 25cm i 12cm. Bramy o wymiarach 2,70x2,20m. Komin z cegły ceramicznej pełnej. Słupy i podciągi żelbetowe. Więźba dachowa wielospadowa, drewniana, pokryta blachodachówką.
PROJEKT:
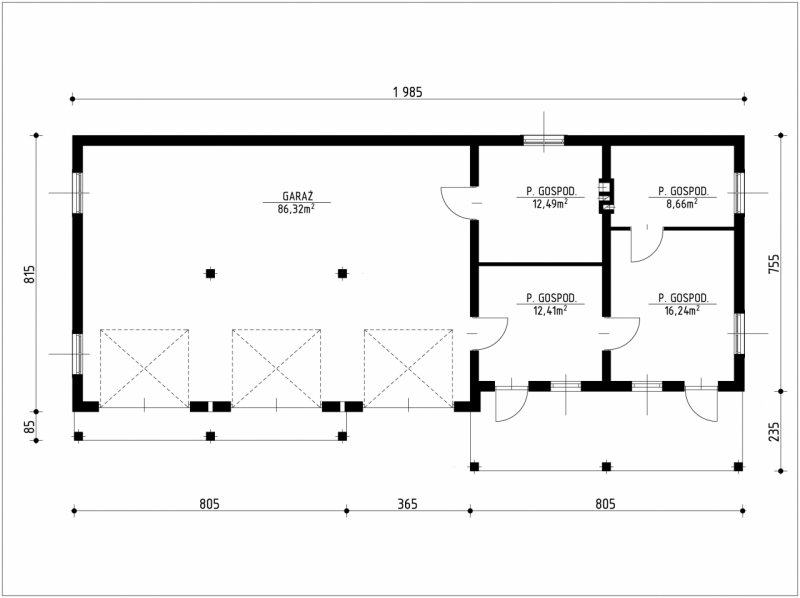
Projekt garażu trzystanowiskowego, parterowego, niepodpiwniczonego, przeznaczonego dla samochodów osobowych z czterema pomieszczeniami gospodarczymi. Do projektu dołączone jest zestawienie: stali, więźby dachowej oraz stolarki drzwiowej i okiennej, jak równieżbezpłatna zgoda na dokonanie zmian.