Dane techniczne
					
						- Powierzchnia użytkowa 27.15 m²
- Powierzchnia zabudowy 36.80 m²
- Kubatura 122.80 m³
- Kąt nachylenia dachu 25.00°
- Wysokość budynku 3.76 m
- Min. wymiary działki 17.20x12.00 m
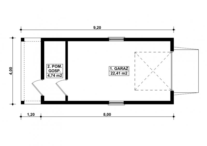
- Garaż 27.15 m²
- Pracownia Kup projekt
 
				
					Technologia budowy
					Budynek wykonany w technologii tradycyjnej. Ściany murowane z pustaków ceramicznych „MAX” grubości 19cm i 12cm. Brama o wymiarach 2,40x2,20m. Słupy i podciągi żelbetowe. Więźba dachowa dwuspadowa, drewniana, pokryta blachodachówką.
				 
				
					Opis
					PROJEKT:
Projekt garażu jednostanowiskowego, parterowego, niepodpiwniczonego, przeznaczonego dla samochodów osobowych z pomieszczeniem gospodarczym i wiatą. Do projektu dołączone jest zestawienie: stali, więźby dachowej oraz stolarki drzwiowej i okiennej, jak równieżbezpłatna zgoda na dokonanie zmian.
				 
								
								
			 
			
			
			
				Dbamy o swoich Klientów, jak nikt inny!
Do każdego projektu zakupionego za pośrednictwem serwisu kreoDOM.pl otrzymasz książeczkę z rabatami na zakupy w firmach Komfort, Fachowiec, Domino Łazienki, Komandor, Witek Home i innych. Książeczka na pewno okaże się przydatna podczas urządzania Twojego wymarzonego domu!
Książeczka z rabatami do takich firm jak: Komfort, Domino Łazienki, Fachowiec, Vox, Komandor, Witek Home i innych
 
 
Gwarancja
bezpiecznych zakupów
 
 
 
				
					
					
						
Dodatkowe pakiety projektowe