Dane techniczne
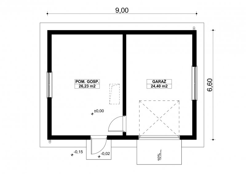
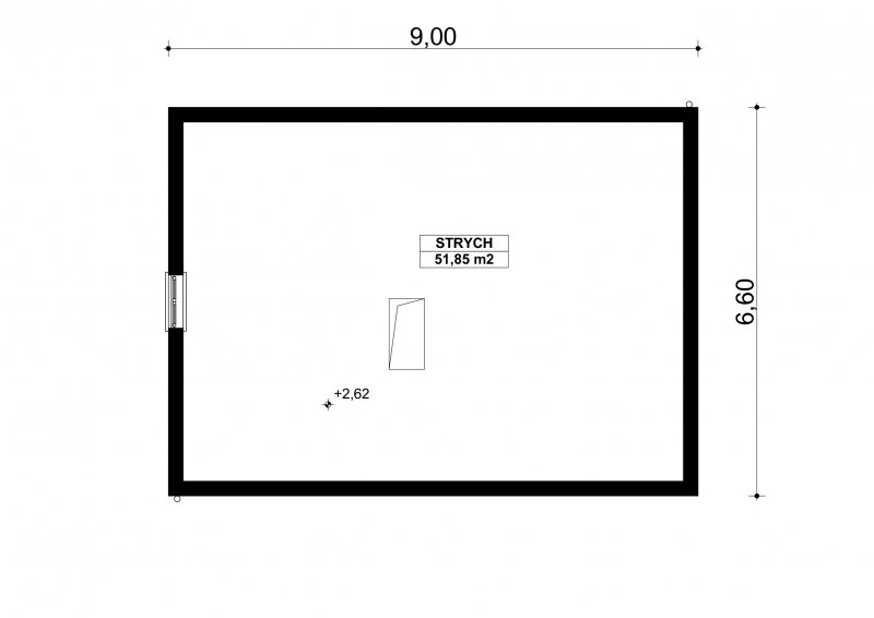
- Powierzchnia użytkowa 83.60 m²
- Powierzchnia zabudowy 59.40 m²
- Kubatura 291.80 m³
- Kąt nachylenia dachu 38.00°
- Wysokość budynku 6.05 m
- Garaż 24.40 m²
- Pracownia Kup projekt
Technologia budowy
Budynek wykonany w technologii tradycyjnej. Ściany warstwowe grubości 25cm, murowane z bloczków z betonu komórkowego grubości 20cm, ocieplone styropianem grubości 5cm. Ściany wewnętrzne z bloczków z betonu komórkowego grubości 20cm. Brama o wymiarach 2,50x2,20m. Strop żelbetowy. Więźba dachowa dwuspadowa, stalowa, pokryta blachą trapezową.
Opis
PROJEKT:
Projekt garażu jednostanowiskowego, parterowego, niepodpiwniczonego, przeznaczonego dla samochodów osobowych ze strychem i pomieszczeniem gospodarczym. Do projektu dołączone jest zestawienie: stali, więźby dachowej oraz stolarki drzwiowej i okiennej, jak równieżbezpłatna zgoda na dokonanie zmian.
Dbamy o swoich Klientów, jak nikt inny!
Do każdego projektu zakupionego za pośrednictwem serwisu kreoDOM.pl otrzymasz książeczkę z rabatami na zakupy w firmach Komfort, Fachowiec, Domino Łazienki, Komandor, Witek Home i innych. Książeczka na pewno okaże się przydatna podczas urządzania Twojego wymarzonego domu!
Książeczka z rabatami do takich firm jak: Komfort, Domino Łazienki, Fachowiec, Vox, Komandor, Witek Home i innych
Gwarancja
bezpiecznych zakupów
Dodatkowe pakiety projektowe