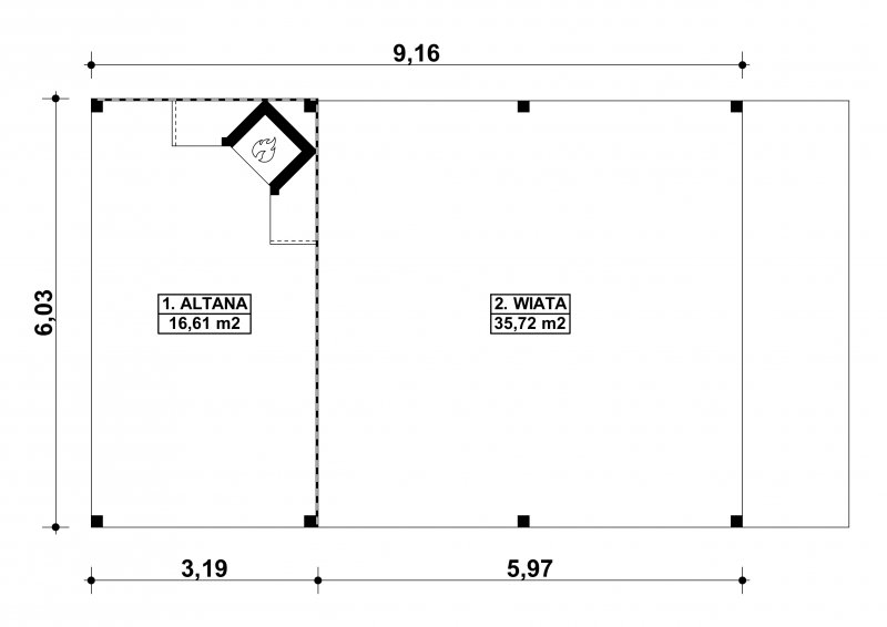
Dane techniczne
- Powierzchnia użytkowa 52.33 m²
- Powierzchnia zabudowy 55.23 m²
- Kubatura 204.50 m³
- Kąt nachylenia dachu 25.00°
- Wysokość budynku 4.27 m
- Pracownia Kup projekt
Technologia budowy
Budynek konstrukcji drewnianej. Ściana drewniana grubości 3,2cm. Grill z cegły ceramicznej pełnej. Więźba dachowa dwuspadowa, drewniana, pokryta blachodachówką.
Opis
PROJEKT:
Projekt wiaty drewnianej, przeznaczonej dla samochodów osobowych z grillem. Do projektu dołączone jest zestawienie: podstawowych materiałów konstrukcyjnych i więźby dachowej, jak równieżbezpłatna zgoda na dokonanie zmian.
Dbamy o swoich Klientów, jak nikt inny!
Do każdego projektu zakupionego za pośrednictwem serwisu kreoDOM.pl otrzymasz książeczkę z rabatami na zakupy w firmach Komfort, Fachowiec, Domino Łazienki, Komandor, Witek Home i innych. Książeczka na pewno okaże się przydatna podczas urządzania Twojego wymarzonego domu!
Książeczka z rabatami do takich firm jak: Komfort, Domino Łazienki, Fachowiec, Vox, Komandor, Witek Home i innych
Gwarancja
bezpiecznych zakupów
Dodatkowe pakiety projektowe