Dane techniczne
					
						- Powierzchnia użytkowa 167.22 m²
- Powierzchnia zabudowy 192.35 m²
- Kubatura 876.00 m³
- Kąt nachylenia dachu 25.00°
- Wysokość budynku 5.39 m
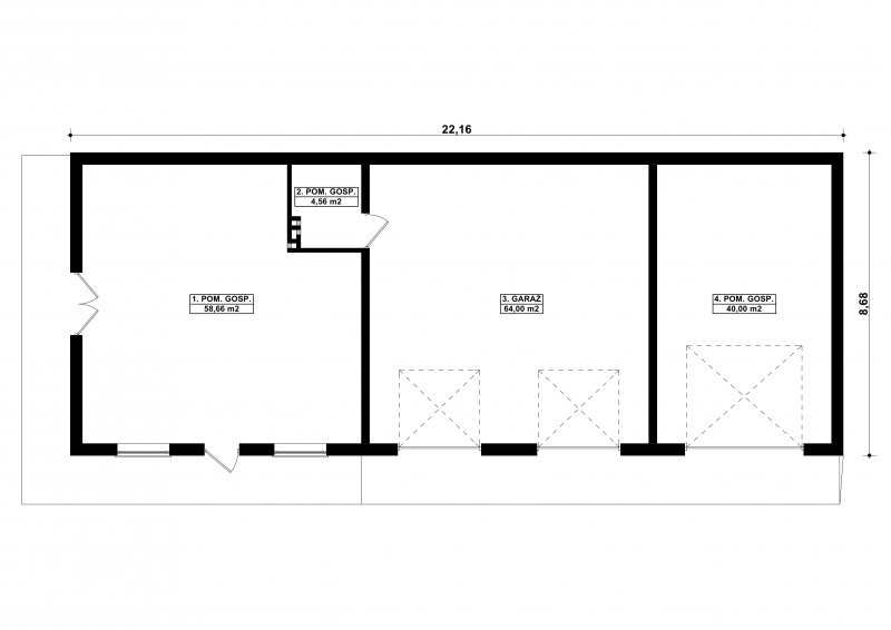
- Garaż 104.00 m²
- Pracownia Kup projekt
 
				
					Technologia budowy
					Budynek wykonany w technologii tradycyjnej. Ściany warstwowe grubości 34cm, murowane z bloczków z betonu komórkowego grubości 24cm, ocieplone styropianem grubości 10cm. Ściany wewnętrzne z bloczków z betonu komórkowego grubości 24cm i 12cm. Bramy o wymiarach 2,40x2,20m i 3,40x2,90m. Komin z cegły ceramicznej pełnej. Więźba dachowa dwuspadowa, drewniana, pokryta blachą trapezową.
				 
				
					Opis
					PROJEKT:
Projekt garażu trzystanowiskowego, parterowego, niepodpiwniczonego, przeznaczonego dla samochodów dostawczych i osobowych z dwoma pomieszczeniami gospodarczymi. Do projektu dołączone jest zestawienie: stali, więźby dachowej oraz stolarki drzwiowej i okiennej, jak równieżbezpłatna zgoda na dokonanie zmian.
				 
								
								
			 
			
			
			
				Dbamy o swoich Klientów, jak nikt inny!
Do każdego projektu zakupionego za pośrednictwem serwisu kreoDOM.pl otrzymasz książeczkę z rabatami na zakupy w firmach Komfort, Fachowiec, Domino Łazienki, Komandor, Witek Home i innych. Książeczka na pewno okaże się przydatna podczas urządzania Twojego wymarzonego domu!
Książeczka z rabatami do takich firm jak: Komfort, Domino Łazienki, Fachowiec, Vox, Komandor, Witek Home i innych
 
 
Gwarancja
bezpiecznych zakupów
 
 
 
				
					
					
						
Dodatkowe pakiety projektowe