Dane techniczne
					
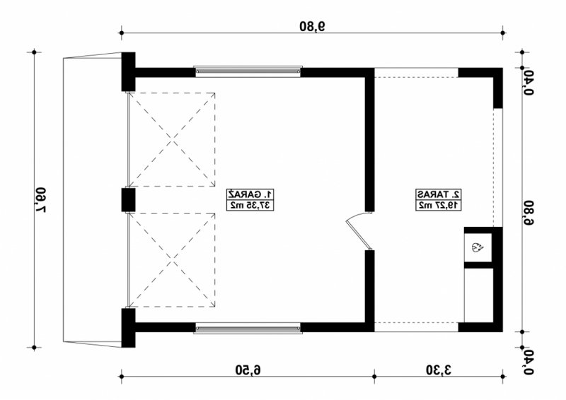
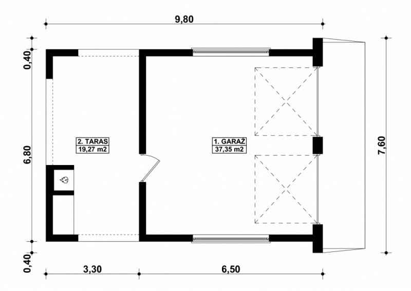
						- Powierzchnia użytkowa 37.35 m²
- Powierzchnia zabudowy 66.92 m²
- Kubatura 227.30 m³
- Kąt nachylenia dachu 5.00°
- Wysokość budynku 3.72 m
- Garaż 37.35 m²
- Pracownia Kup projekt
 
				
					Technologia budowy
					Budynek wykonany w technologii tradycyjnej. Ściany murowane z bloczków z betonu komórkowego grubości 24cm. Bramy o wymiarach 2,50x2,20m. Grill z cegły ceramicznej pełnej. Podciągi żelbetowe. Więźba dachowa jednospadowa, drewniana, pokryta blachą trapezową.
				 
				
					Opis
					PROJEKT:
Projekt garażu dwustanowiskowego, parterowego, niepodpiwniczonego, przeznaczonego dla samochodów osobowych z grillem. Do projektu dołączone jest zestawienie: stali, więźby dachowej oraz stolarki drzwiowej i okiennej, jak równieżbezpłatna zgoda na dokonanie zmian.
				 
								
												
				
			 
			
			
			
				Dbamy o swoich Klientów, jak nikt inny!
Do każdego projektu zakupionego za pośrednictwem serwisu kreoDOM.pl otrzymasz książeczkę z rabatami na zakupy w firmach Komfort, Fachowiec, Domino Łazienki, Komandor, Witek Home i innych. Książeczka na pewno okaże się przydatna podczas urządzania Twojego wymarzonego domu!
Książeczka z rabatami do takich firm jak: Komfort, Domino Łazienki, Fachowiec, Vox, Komandor, Witek Home i innych
 
 
Gwarancja
bezpiecznych zakupów
 
 
 
				
					
					
						
Dodatkowe pakiety projektowe