Budynek wykonany w technologii tradycyjnej. Ściany warstwowe grubości 34cm, murowane z bloczków z betonu komórkowego grubości 24cm, ocieplone styropianem grubości 10cm. Ściany wewnętrzne z bloczków z betonu komórkowego grubości 24cm i 12cm. Bramy o wymiarach 4,00x3,50m. Komin z cegły ceramicznej pełnej. Słupy i podciągi żelbetowe. Więźba dachowa dwuspadowa, drewniana, pokryta blachą trapezową.
PROJEKT:
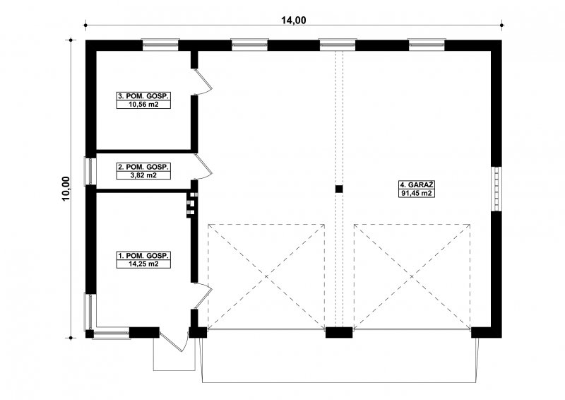
Projekt garażu dwustanowiskowego, parterowego, niepodpiwniczonego, przeznaczonego dla samochodów ciężarowych z trzema pomieszczeniami gospodarczymi. Do projektu dołączone jest zestawienie: stali, więźby dachowej oraz stolarki drzwiowej i okiennej, jak równieżbezpłatna zgoda na dokonanie zmian.