Dane techniczne
- Powierzchnia użytkowa 63.57 m²
- Powierzchnia zabudowy 92.88 m²
- Kubatura 232.00 m³
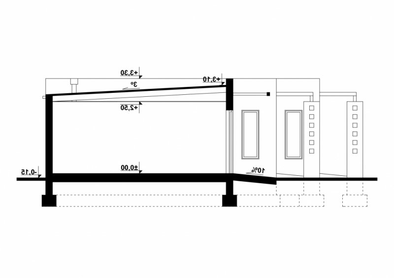
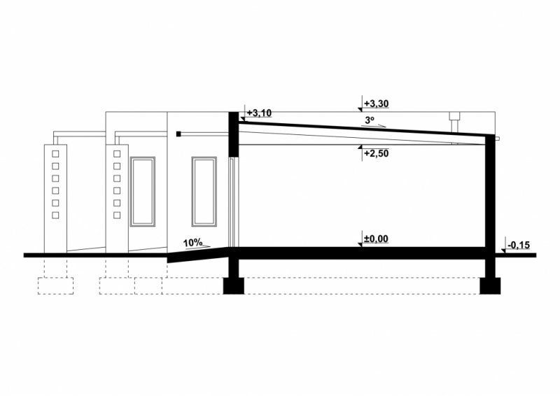
- Kąt nachylenia dachu 3.00°
- Wysokość budynku 3.30 m
- Min. wymiary działki 11.52x11.00 m
- Garaż 63.57 m²
- Pracownia Kup projekt
Technologia budowy
Budynek wykonany w technologii tradycyjnej. Ściany murowane z bloczków z betonu komórkowego grubości 24cm. Bramy o wymiarach 2,50x2,20m. Słupy żelbetowe. Więźba dachowa jednospadowa, drewniana, pokryta blachą trapezową.
Opis
PROJEKT:
Projekt garażu trzystanowiskowego, parterowego, niepodpiwniczonego, przeznaczonego dla samochodów osobowych. Do projektu dołączone jest zestawienie: stali, więźby dachowej oraz stolarki drzwiowej i okiennej, jak również bezpłatna zgoda na dokonanie zmian.
Dbamy o swoich Klientów, jak nikt inny!
Do każdego projektu zakupionego za pośrednictwem serwisu kreoDOM.pl otrzymasz książeczkę z rabatami na zakupy w firmach Komfort, Fachowiec, Domino Łazienki, Komandor, Witek Home i innych. Książeczka na pewno okaże się przydatna podczas urządzania Twojego wymarzonego domu!
Książeczka z rabatami do takich firm jak: Komfort, Domino Łazienki, Fachowiec, Vox, Komandor, Witek Home i innych
Gwarancja
bezpiecznych zakupów
Dodatkowe pakiety projektowe