Dane techniczne
- Powierzchnia użytkowa 73.93 m²
- Powierzchnia zabudowy 60.20 m²
- Kubatura 311.00 m³
- Kąt nachylenia dachu 30.00°
- Wysokość budynku 6.40 m
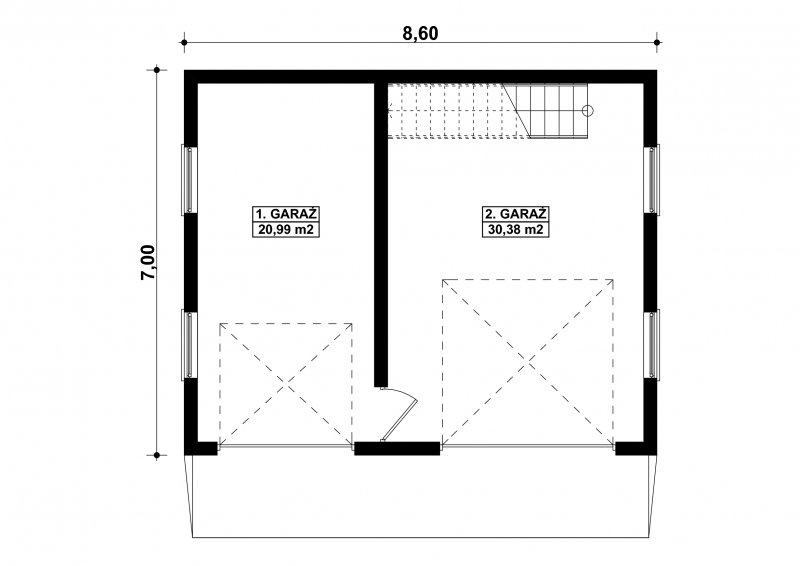
- Min. wymiary działki 8.60x7.00 m
- Garaż 51.37 m²
- Pracownia Kup projekt
Technologia budowy
Budynek wykonany w technologii tradycyjnej. Ściany murowane z bloczków z betonu komórkowego grubości 24cm i 12cm. Bramy o wymiarach 2,50x2,20m i 3,20x3,00m. Strop gęstożebrowy „TERIVA 4,0”. Więźba dachowa dwuspadowa, drewniana, pokryta blachą trapezową.
Opis
PROJEKT:
Projekt garażu dwustanowiskowego, parterowego, niepodpiwniczonego, przeznaczonego dla samochodów osobowych i dostawczych z antresolą. Do projektu dołączone jest zestawienie: stali, więźby dachowej oraz stolarki drzwiowej i okiennej, jak również bezpłatna zgoda na dokonanie zmian.
Dbamy o swoich Klientów, jak nikt inny!
Do każdego projektu zakupionego za pośrednictwem serwisu kreoDOM.pl otrzymasz książeczkę z rabatami na zakupy w firmach Komfort, Fachowiec, Domino Łazienki, Komandor, Witek Home i innych. Książeczka na pewno okaże się przydatna podczas urządzania Twojego wymarzonego domu!
Książeczka z rabatami do takich firm jak: Komfort, Domino Łazienki, Fachowiec, Vox, Komandor, Witek Home i innych
Gwarancja
bezpiecznych zakupów
Dodatkowe pakiety projektowe