Dane techniczne
- Powierzchnia użytkowa 152.69 m²
- Powierzchnia zabudowy 120.87 m²
- Kubatura 361.00 m³
- Kąt nachylenia dachu 42.00°
- Powierzchnia dachu 199.25 m²
- Wysokość budynku 7.39 m
- Min. wymiary działki 15.20x7.80 m
- Garaż 31.14 m²
- Pracownia LK & Projekt
Technologia budowy
- Strop: żelbetowy
- Ściany wewnętrzne: z pustaków ceramicznych Porotherm gr. 25, 11.5 firmy Wienerberger
- Ściany zewnętrzne: z pustaków ceramicznych 'Porotherm' firmy 'Wienerberger' o gr.50 cm
- Ściany fundamentowe: betonowe
- Ławy fundamentowe: żelbetowe
- Konstrukcja dachu: drewniana
- Pokrycie dachu: łupkiem naturalnym prostokątnym
- Elewacje: wykończone tynkiem silikonowym
- Okna i drzwi balkonowe: drewniane
- Wentylacja: grawitacyjna
Opis
Wolnostojący garaż przeznaczony na dwa samochody.
Rzuty
PARTER
Parter
1. Hall 8.37m
2. Pomieszczenie gospodarcze 16.50m
3. Garaż 31.14m
4. Garaż 2 31.14m
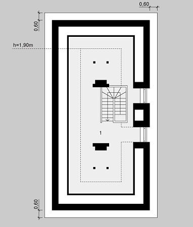
PODDASZE
Poddasze
1. Strych (58.58) 32.77m
Rzuty
PARTER
Parter
1. Hall 8.37m
2. Pomieszczenie gospodarcze 16.50m
3. Garaż 31.14m
4. Garaż 2 31.14m
PODDASZE
Poddasze
1. Strych (58.58) 32.77m
Dbamy o swoich Klientów, jak nikt inny!
Do każdego projektu zakupionego za pośrednictwem serwisu kreoDOM.pl otrzymasz książeczkę z rabatami na zakupy w firmach Komfort, Fachowiec, Domino Łazienki, Komandor, Witek Home i innych. Książeczka na pewno okaże się przydatna podczas urządzania Twojego wymarzonego domu!
Książeczka z rabatami do takich firm jak: Komfort, Domino Łazienki, Fachowiec, Vox, Komandor, Witek Home i innych
Gwarancja
bezpiecznych zakupów
Dodatkowe pakiety projektowe
- Kosztorys inwestorski cena ustalana indywidualnie
- Kolektory słoneczne cena ustalana indywidualnie
- Kominek z DGP cena ustalana indywidualnie
- Wentylacja mechaniczna z rekuperacją cena ustalana indywidualnie
- Pompa ciepła cena ustalana indywidualnie