Dane techniczne
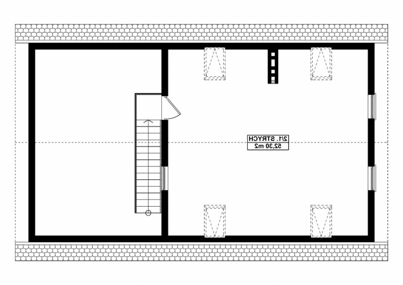
- Powierzchnia użytkowa 102.45 m²
- Powierzchnia zabudowy 97.50 m²
- Kubatura 538.80 m³
- Kąt nachylenia dachu 40.00°
- Wysokość budynku 7.10 m
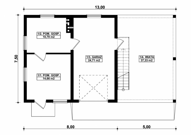
- Garaż 24.71 m²
- Pracownia Kup projekt
Technologia budowy
Budynek wykonany w technologii tradycyjnej. Ściany murowane z bloczków z betonu komórkowego grubości 24cm i 12cm. Brama o wymiarach 2,50x2,20m. Strop gęstożebrowy „TERIVA 4,0”. Więźba dachowa dwuspadowa, drewniana, pokryta blachą na rąbek.
Opis
PROJEKT:
Projekt garażu jednostanowiskowego, piętrowego, przeznaczonego dla samochodów osobowych z trzema pomieszczeniami gospodarczymi i wiatą. Do projektu dołączone jest zestawienie: stali, więźby dachowej oraz stolarki drzwiowej i okiennej, jak równieżbezpłatna zgoda na dokonanie zmian.
Dbamy o swoich Klientów, jak nikt inny!
Do każdego projektu zakupionego za pośrednictwem serwisu kreoDOM.pl otrzymasz książeczkę z rabatami na zakupy w firmach Komfort, Fachowiec, Domino Łazienki, Komandor, Witek Home i innych. Książeczka na pewno okaże się przydatna podczas urządzania Twojego wymarzonego domu!
Książeczka z rabatami do takich firm jak: Komfort, Domino Łazienki, Fachowiec, Vox, Komandor, Witek Home i innych
Gwarancja
bezpiecznych zakupów
Dodatkowe pakiety projektowe