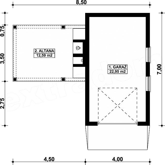
Dane techniczne
- Powierzchnia użytkowa 22.95 m²
- Powierzchnia zabudowy 43.75 m²
- Kubatura 156.70 m³
- Kąt nachylenia dachu 30.00°
- Wysokość budynku 4.01 m
- Garaż 22.95 m²
- Pracownia Kup projekt
Technologia budowy
Budynek wykonany w technologii tradycyjnej. Ściany murowane z bloczków z betonu komórkowego grubości 24cm. Brama o wymiarach 2,50x2,20m. Słupy i podciągi drewniane. Więźba dachowa wielospadowa, drewniana, pokryta blachodachówką.
Opis
PROJEKT:
Projekt garażu jedostanowiskowego, parterowego, niepodpiwniczonego, przeznaczonego dla samochodów osobowych z altaną. Do projektu dołączone jest zestawienie: stali, więźby dachowej oraz stolarki drzwiowej i okiennej, jak również bezpłatna zgoda na dokonanie zmian.
Dbamy o swoich Klientów, jak nikt inny!
Do każdego projektu zakupionego za pośrednictwem serwisu kreoDOM.pl otrzymasz książeczkę z rabatami na zakupy w firmach Komfort, Fachowiec, Domino Łazienki, Komandor, Witek Home i innych. Książeczka na pewno okaże się przydatna podczas urządzania Twojego wymarzonego domu!
Książeczka z rabatami do takich firm jak: Komfort, Domino Łazienki, Fachowiec, Vox, Komandor, Witek Home i innych
Gwarancja
bezpiecznych zakupów
Dodatkowe pakiety projektowe