Dane techniczne
- Powierzchnia użytkowa 107.58 m²
- Powierzchnia zabudowy 86.25 m²
- Kubatura 333.62 m³
- Kąt nachylenia dachu 43.00°
- Powierzchnia dachu 176.00 m²
- Wysokość budynku 8.50 m
- Min. wymiary działki 7.50x11.50 m
- Garaż 49.77 m²
- Pracownia LK & Projekt
Technologia budowy
- Wentylacja: grawitacyjna
- Konstrukcja dachu: drewniana, mieszana: krokwiowa oraz płatwiowo-kleszczowa + wełna mineralna 'Megarock' firmy Rockwool o łącznej grubości 30cm
- Pokrycie dachu: dachówką ceramiczną 'Koramic' firmy 'Wienerberger'
- Elewacje: wykończone tynkiem silikonowym, cokoły wykończone kamieniem naturalnym ciętym
- Okna i drzwi balkonowe: PVC firmy Oknoplast
- Sposób ogrzewania: zasilanie C.O z budynku mieszklanego
- Ściany wewnętrzne: z bloczków Silka gr. 24 i 12 cm
- Strop: żelbetowy
- Ściany zewnętrzne: z bloczków z betonu komórkowego Ytong Energo gr.48 cm
- Ściany fundamentowe: z bloczków betonowych o gr.24 i 30 cm, ocieplone styropianem Gold fundament o gr. 18 cm
- Ławy fundamentowe: żelbetowe
Opis
Projekt garażu dwustaniskowego z poddaszem.
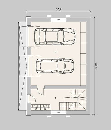
Rzuty
PARTER
- Sień 11,10 m2
- Garaż 49,77 m2
- Komunikacja (3,23) 2,64 m2
- Łazienka (7,02) 4,11 m2
- Siłownia (51,38) 39,96 m2
Rzuty
PARTER
- Sień 11,10 m2
- Garaż 49,77 m2
- Komunikacja (3,23) 2,64 m2
- Łazienka (7,02) 4,11 m2
- Siłownia (51,38) 39,96 m2
Dbamy o swoich Klientów, jak nikt inny!
Do każdego projektu zakupionego za pośrednictwem serwisu kreoDOM.pl otrzymasz książeczkę z rabatami na zakupy w firmach Komfort, Fachowiec, Domino Łazienki, Komandor, Witek Home i innych. Książeczka na pewno okaże się przydatna podczas urządzania Twojego wymarzonego domu!
Książeczka z rabatami do takich firm jak: Komfort, Domino Łazienki, Fachowiec, Vox, Komandor, Witek Home i innych
Gwarancja
bezpiecznych zakupów
Dodatkowe pakiety projektowe
- Kosztorys inwestorski cena ustalana indywidualnie
- Kolektory słoneczne cena ustalana indywidualnie
- Kominek z DGP cena ustalana indywidualnie
- Wentylacja mechaniczna z rekuperacją cena ustalana indywidualnie
- Pompa ciepła cena ustalana indywidualnie