Dane techniczne
					
						- Powierzchnia użytkowa 198.74 m²
- Powierzchnia zabudowy 178.57 m²
- Kubatura 993.60 m³
- Kąt nachylenia dachu 10.00°
- Wysokość budynku 6.20 m
- Min. wymiary działki 22.24x20.54 m
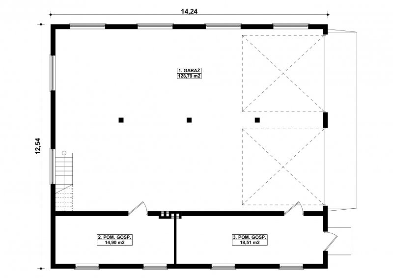
- Garaż 128.79 m²
- Pracownia Kup projekt
 
				
					Technologia budowy
					Budynek wykonany w technologii tradycyjnej. Ściany murowane z bloczków z betonu komórkowego grubości 24cm i 12cm. Bramy o wymiarach 4,00x4,20m. Komin z cegły ceramicznej pełnej. Słupy i podciągi żelbetowe. Więźba dachowa dwuspadowa, drewniana, pokryta blachą trapezową.
				 
				
					Opis
					PROJEKT:
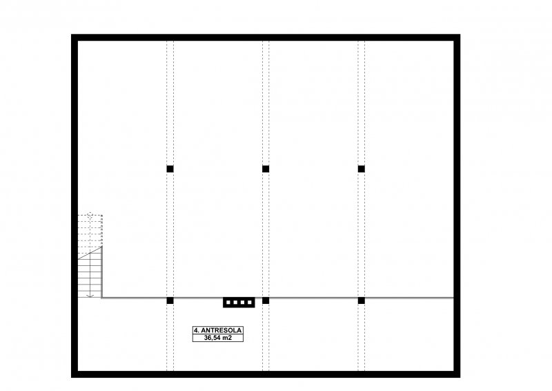
Projekt garażu dwustanowiskowego, parterowego, niepodpiwniczonego, przeznaczonego dla samochodów ciężarowych z dwoma pomieszczeniami gospodarczymi i antresolą. Do projektu dołączone jest zestawienie: stali, więźby dachowej oraz stolarki drzwiowej i okiennej, jak równieżbezpłatna zgoda na dokonanie zmian.
				 
								
								
			 
			
			
			
				Dbamy o swoich Klientów, jak nikt inny!
Do każdego projektu zakupionego za pośrednictwem serwisu kreoDOM.pl otrzymasz książeczkę z rabatami na zakupy w firmach Komfort, Fachowiec, Domino Łazienki, Komandor, Witek Home i innych. Książeczka na pewno okaże się przydatna podczas urządzania Twojego wymarzonego domu!
Książeczka z rabatami do takich firm jak: Komfort, Domino Łazienki, Fachowiec, Vox, Komandor, Witek Home i innych
 
 
Gwarancja
bezpiecznych zakupów
 
 
 
				
					
					
						
Dodatkowe pakiety projektowe