Dane techniczne
- Powierzchnia użytkowa 113.62 m²
- Powierzchnia zabudowy 176.00 m²
- Kubatura 348.00 m³
- Kąt nachylenia dachu 2.00°
- Powierzchnia dachu 170.00 m²
- Wysokość budynku 4.33 m
- Garaż 87.00 m²
- Pracownia LK & Projekt
Technologia budowy
- Sposób ogrzewania: pompa ciepła
- Wentylacja: grawitacyjna
- Okna i drzwi balkonowe: aluminiowe
- Pokrycie dachu: papa - stropodach wg systemu Bauder
- Elewacje: tynk silikonowy kolor: biały,cegla klinkierowa Kadyks firmy Wienereberger; cokół obłożony kamieniem -trawertyn
- Konstrukcja dachu: stropodach wg systemu Bauder
- Ściany wewnętrzne: pustaki ceramiczne Heluz Family o gr. 25 cm i 11,5 cm
- Strop: żelbetowy, monolityczny
- Ściany zewnętrzne: pustaki ceramiczne Heluz Family o gr.50 cm
- Ściany fundamentowe: betonowe o gr. 30cm i 43 cm, ocieplone styropianem Gold fundament o gr.7 cm firmy Termo Organika
- Ławy fundamentowe: żelbetowe
Opis
Projekt nowoczesnego garażu, który posiada aż 4 miejsca parkingowe.
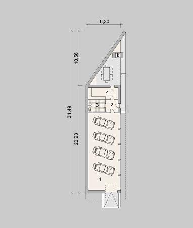
Rzuty
PARTER
- Powierzchnia użytkowa 113.62 m2
- Garaż 87 m2
- Hall 5.49 m2
- Pomieszczenie techniczne 7.59 m2
- Pomieszczenie gospodarcze 13.54 m2
Rzuty
PARTER
- Powierzchnia użytkowa 113.62 m2
- Garaż 87 m2
- Hall 5.49 m2
- Pomieszczenie techniczne 7.59 m2
- Pomieszczenie gospodarcze 13.54 m2
Dbamy o swoich Klientów, jak nikt inny!
Do każdego projektu zakupionego za pośrednictwem serwisu kreoDOM.pl otrzymasz książeczkę z rabatami na zakupy w firmach Komfort, Fachowiec, Domino Łazienki, Komandor, Witek Home i innych. Książeczka na pewno okaże się przydatna podczas urządzania Twojego wymarzonego domu!
Książeczka z rabatami do takich firm jak: Komfort, Domino Łazienki, Fachowiec, Vox, Komandor, Witek Home i innych
Gwarancja
bezpiecznych zakupów
Dodatkowe pakiety projektowe
- Kosztorys inwestorski cena ustalana indywidualnie
- Kolektory słoneczne cena ustalana indywidualnie
- Kominek z DGP cena ustalana indywidualnie
- Wentylacja mechaniczna z rekuperacją cena ustalana indywidualnie
- Pompa ciepła cena ustalana indywidualnie