Dane techniczne
- Powierzchnia użytkowa 55.86 m²
- Powierzchnia zabudowy 65.00 m²
- Kubatura 224.70 m³
- Kąt nachylenia dachu 25.00°
- Wysokość budynku 4.32 m
- Min. wymiary działki 17.00x13.50 m
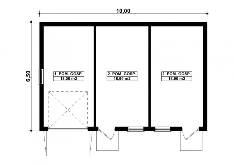
- Garaż 18.06 m²
- Pracownia Kup projekt
Technologia budowy
Budynek wykonany w technologii tradycyjnej. Ściany murowane z bloczków z betonu komórkowego grubości 24cm i 12cm. Brama o wymiarach 2,40x2,20m. Więźba dachowa czterospadowa, drewniana, pokryta blachodachówką.
Opis
PROJEKT:
Projekt budynku parterowego, niepodpiwniczonego, z trzema pomieszczeniami gospodarczymi. Do projektu dołączone jest zestawienie: stali, więźby dachowej oraz stolarki drzwiowej i okiennej, jak równieżbezpłatna zgoda na dokonanie zmian.
Dbamy o swoich Klientów, jak nikt inny!
Do każdego projektu zakupionego za pośrednictwem serwisu kreoDOM.pl otrzymasz książeczkę z rabatami na zakupy w firmach Komfort, Fachowiec, Domino Łazienki, Komandor, Witek Home i innych. Książeczka na pewno okaże się przydatna podczas urządzania Twojego wymarzonego domu!
Książeczka z rabatami do takich firm jak: Komfort, Domino Łazienki, Fachowiec, Vox, Komandor, Witek Home i innych
Gwarancja
bezpiecznych zakupów
Dodatkowe pakiety projektowe