Dane techniczne
- Powierzchnia użytkowa 33.45 m²
- Powierzchnia zabudowy 44.33 m²
- Kubatura 86.23 m³
- Kąt nachylenia dachu 25.00°
- Powierzchnia dachu 65.05 m²
- Wysokość budynku 4.74 m
- Min. wymiary działki 14.50x16.80 m
- Pracownia Archipelag
Technologia budowy
Garaż zaprojektowany w technologii murowej ze stropem drewnianym. Dach dwuspadowy o konstrukcji drewnianej pokryty dachówką cementową IBF. Więźba dachowa dostępna również w systemie prefabrykacji drewnianej. Elewacje wykończono tynkiem mineralnym oraz okładziną kamienną. Stolarka okienna drewniana lub PCV.
Opis
Garaż jednostanowiskowy z toaletą oraz pomieszczeniem gospodarczym dostępnym zarówno z zewnątrz, jak i od wewnątrz budynku. Garaż G22 – praktyczny, estetyczny i funkcjonalny doskonale dopasuje się do każdej działki. Z myślą o inwestorach, którzy lubią majsterkować lub spędzać czas na pielęgnacji przydomowego ogrodu, w przestrzeni garażu zaplanowano wygodną toaletę. Doskonałym uzupełnieniem całości jest mini-taras oraz pergola – zaciszne miejsce na chwilę oddechu po trudach pracy. Bryła i styl wykończenia garażu harmonijnie skomponują się m.in. z domem Alberta G1. Istnieje możliwość dostawienia bryły garażu do budynku mieszkalnego.
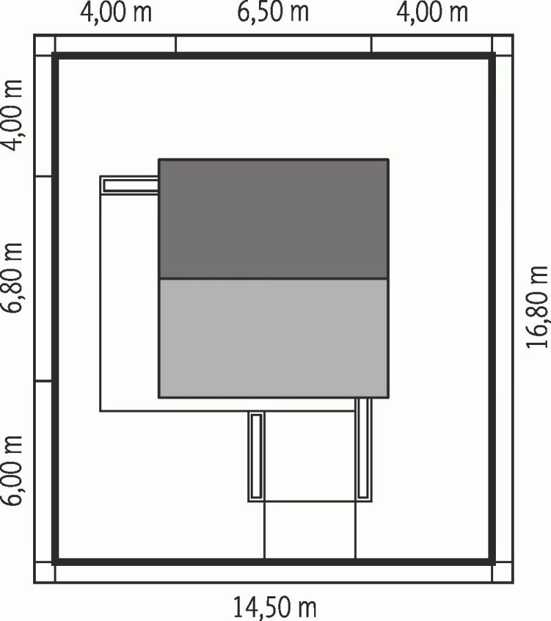
Rzuty
PARTER
- Garaż 20.98 m2
- Pom. gospodarcze 9.98 m2
- Toaleta 2.49 m2
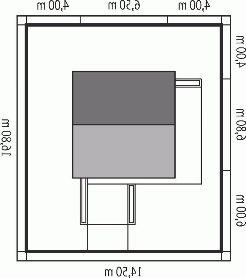
Rzuty
PARTER
- Garaż 20.98 m2
- Pom. gospodarcze 9.98 m2
- Toaleta 2.49 m2
Dbamy o swoich Klientów, jak nikt inny!
Do każdego projektu zakupionego za pośrednictwem serwisu kreoDOM.pl otrzymasz książeczkę z rabatami na zakupy w firmach Komfort, Fachowiec, Domino Łazienki, Komandor, Witek Home i innych. Książeczka na pewno okaże się przydatna podczas urządzania Twojego wymarzonego domu!
Książeczka z rabatami do takich firm jak: Komfort, Domino Łazienki, Fachowiec, Vox, Komandor, Witek Home i innych
Gwarancja
bezpiecznych zakupów
Dodatkowe pakiety projektowe
- Kosztorys inwestorski cena ustalana indywidualnie
- Wentylacja mechaniczna z rekuperacją 700,00 zł
- Wentylacja mechaniczna + GPWC 700,00 zł
- Kolektory Słoneczne 400,00 zł
- Panele Fotowoltaiczne 400,00 zł
- Pompa Ciepła 500,00 zł
- Kominek z DGP 400,00 zł
- Biologiczna oczyszczalnia ścieków 150,00 zł
- Centralny Odkurzacz 300,00 zł
- Szambo przydomowe 200,00 zł
- Dodatkowy egzemplarz projektu 150,00 zł