Dane techniczne
- Powierzchnia użytkowa 67.71 m²
- Powierzchnia zabudowy 98.49 m²
- Kubatura 312.62 m³
- Kąt nachylenia dachu 30.00°
- Powierzchnia dachu 145.14 m²
- Wysokość budynku 6.51 m
- Min. wymiary działki 17.00x19.80 m
- Garaż 32.19 m²
- Pracownia Archipelag
Technologia budowy
Technologia i konstrukcja
Garaż zaprojektowany w technologii murowej ze stropem drewnianym. Dach dwuspadowy o konstrukcji drewnianej pokryty dachówką cementową IBF.
Wykończenie
Elewacje wykończono tynkiem mineralnym. Stolarka okienna drewniana lub PCV.
Opis
Garaż dwustanowiskowy z wiatą oraz częścią mieszkalną zlokalizowaną na poddaszu. Na parterze zaprojektowano strefę gospodarczą: garaż z przestrzenią techniczną oraz toaletą, dostępną z zewnątrz. Z boku budynku zlokalizowano wiatę na jeden samochód, natomiast w dalszej części zaplanowano strefę wypoczynkową w postaci tarasu z grillem. Na poddasze prowadzą schody zewnętrzne. Znajdują się na nim: hol z garderobą, pokój dzienny wraz z kuchnią oraz łazienka. Garaż G31 oferuje imponującą przestrzeń możliwości. Atutem budynku jest czytelny podział stref na część garażową, gospodarczą, mieszkalną oraz wypoczynkową. Poddasze z przestronnym pokojem dziennym, kuchnią oraz łazienką, w zależności od indywidualnych potrzeb, może pełnić funkcję dodatkowej części mieszkalnej, odosobnionej pracowni lub atrakcyjnej strefy rekreacyjnej. Niebagatelna architektura z ciekawymi detalami sprawia, że garaż będzie atrakcyjną ozdobą każdej działki. Bryła i styl wykończenia budynku harmonijnie skomponują się m.in. z domem Eryk, Erin, Tori, Rafael oraz Karmela.
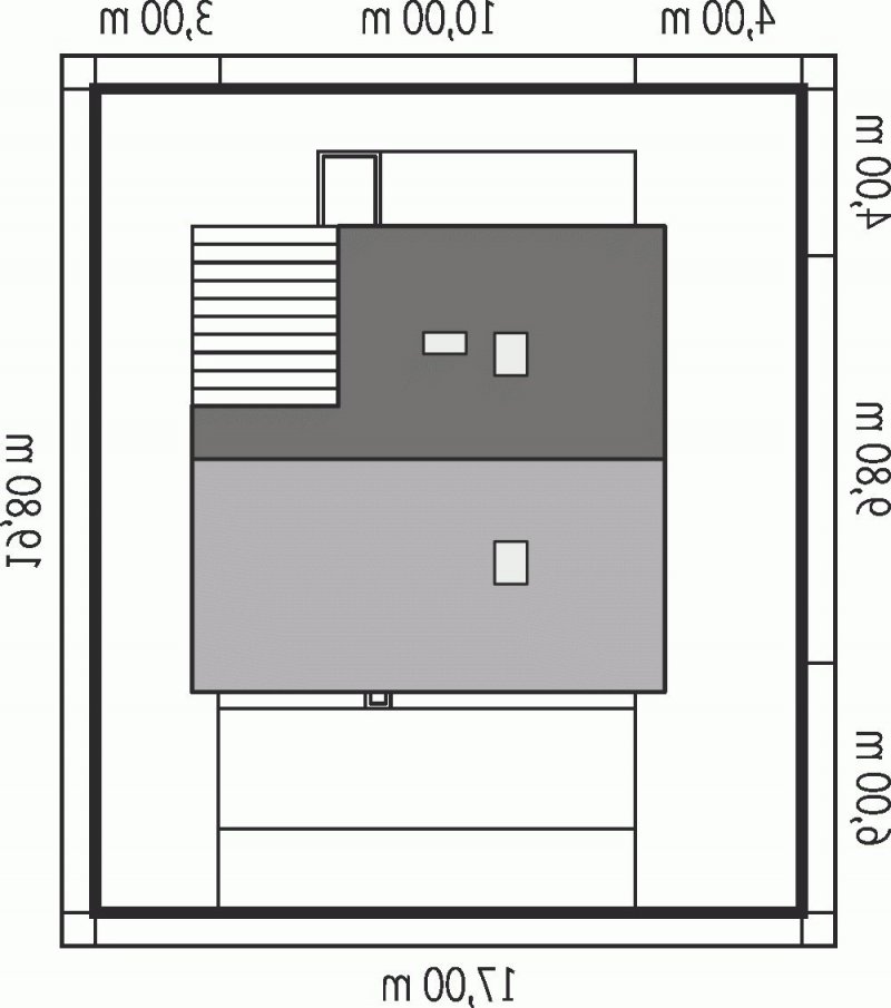
Rzuty
PARTER
- Garaż 32.19 m2
- Pom. gospodarcze 8.13 m2
- Toaleta 1.82 m2
PODDASZE
- Hol 4.47 m2
- Kuchnia 9.86 m2
- Pokój 8.45 m2
- Łazienka 2.79 m2
- Antresola 8.17 m2
Rzuty
PARTER
- Garaż 32.19 m2
- Pom. gospodarcze 8.13 m2
- Toaleta 1.82 m2
PODDASZE
- Hol 4.47 m2
- Kuchnia 9.86 m2
- Pokój 8.45 m2
- Łazienka 2.79 m2
- Antresola 8.17 m2
Dbamy o swoich Klientów, jak nikt inny!
Do każdego projektu zakupionego za pośrednictwem serwisu kreoDOM.pl otrzymasz książeczkę z rabatami na zakupy w firmach Komfort, Fachowiec, Domino Łazienki, Komandor, Witek Home i innych. Książeczka na pewno okaże się przydatna podczas urządzania Twojego wymarzonego domu!
Książeczka z rabatami do takich firm jak: Komfort, Domino Łazienki, Fachowiec, Vox, Komandor, Witek Home i innych
Gwarancja
bezpiecznych zakupów
Dodatkowe pakiety projektowe
- Kosztorys inwestorski cena ustalana indywidualnie
- Wentylacja mechaniczna z rekuperacją 700,00 zł
- Wentylacja mechaniczna + GPWC 700,00 zł
- Kolektory Słoneczne 400,00 zł
- Panele Fotowoltaiczne 400,00 zł
- Pompa Ciepła 500,00 zł
- Kominek z DGP 400,00 zł
- Biologiczna oczyszczalnia ścieków 150,00 zł
- Centralny Odkurzacz 300,00 zł
- Szambo przydomowe 200,00 zł
- Dodatkowy egzemplarz projektu 150,00 zł